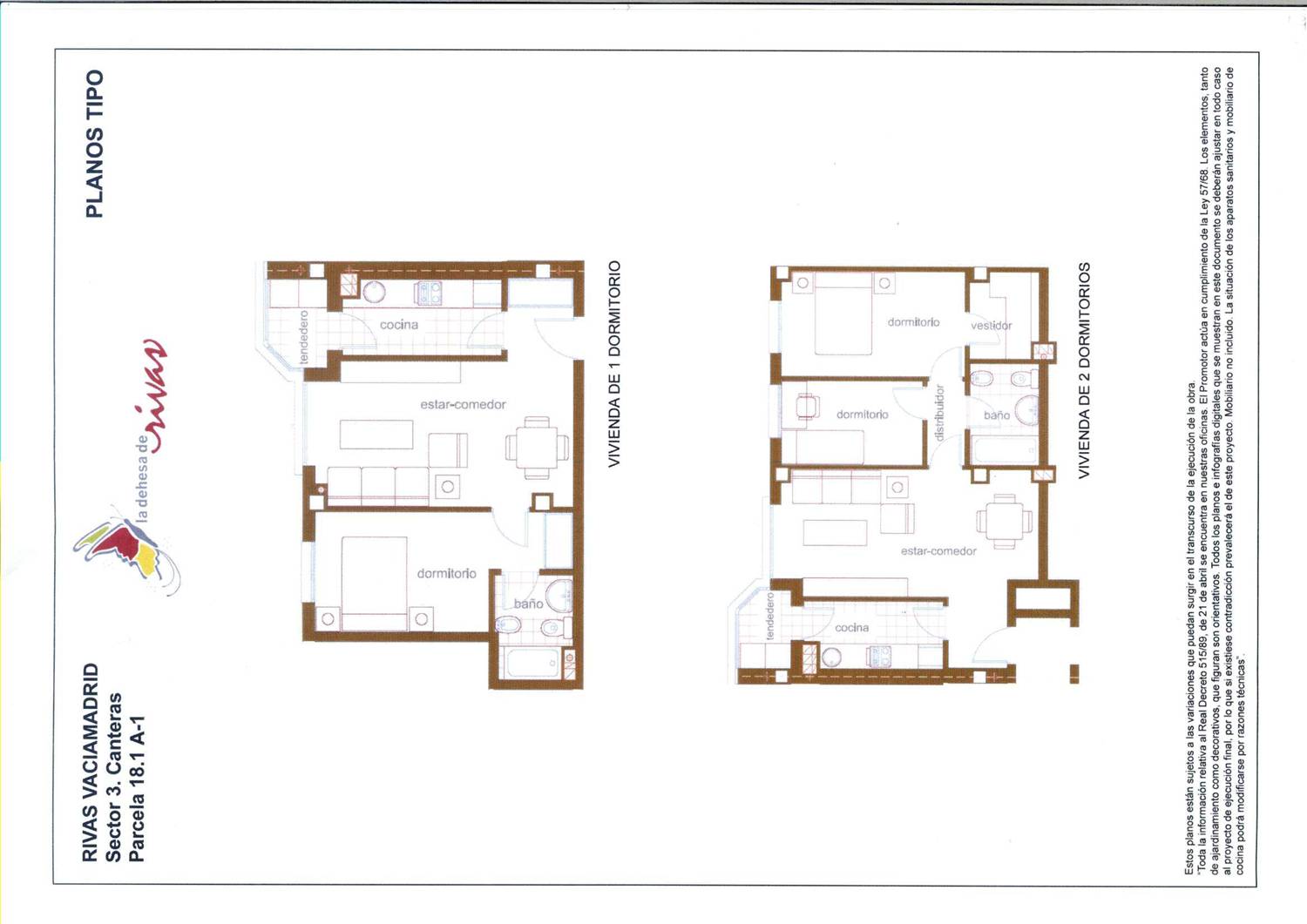
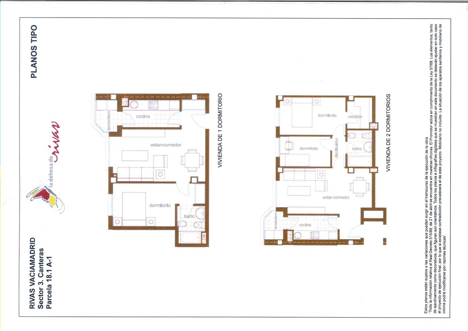
Planos 1 y 2 dormitorios bigeco Planos 1 y 2 dormitorios bigeco
Descargar
ADMIN 6/6/2009 1411
 
No hay  comentarios