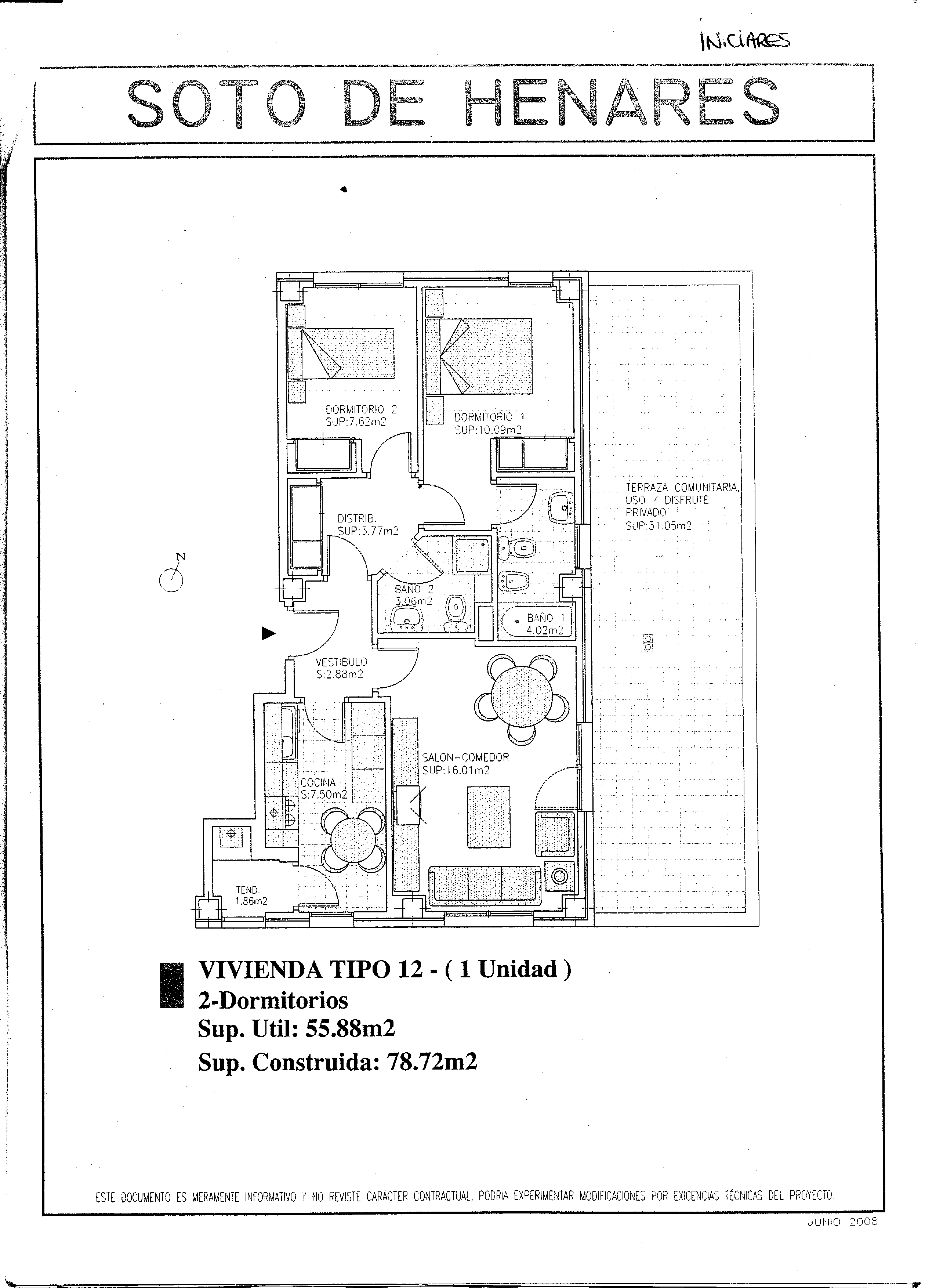
Tipo 12 Tipo 12
Descargar
ADMIN 6/6/2009 1834
 
No hay  comentarios