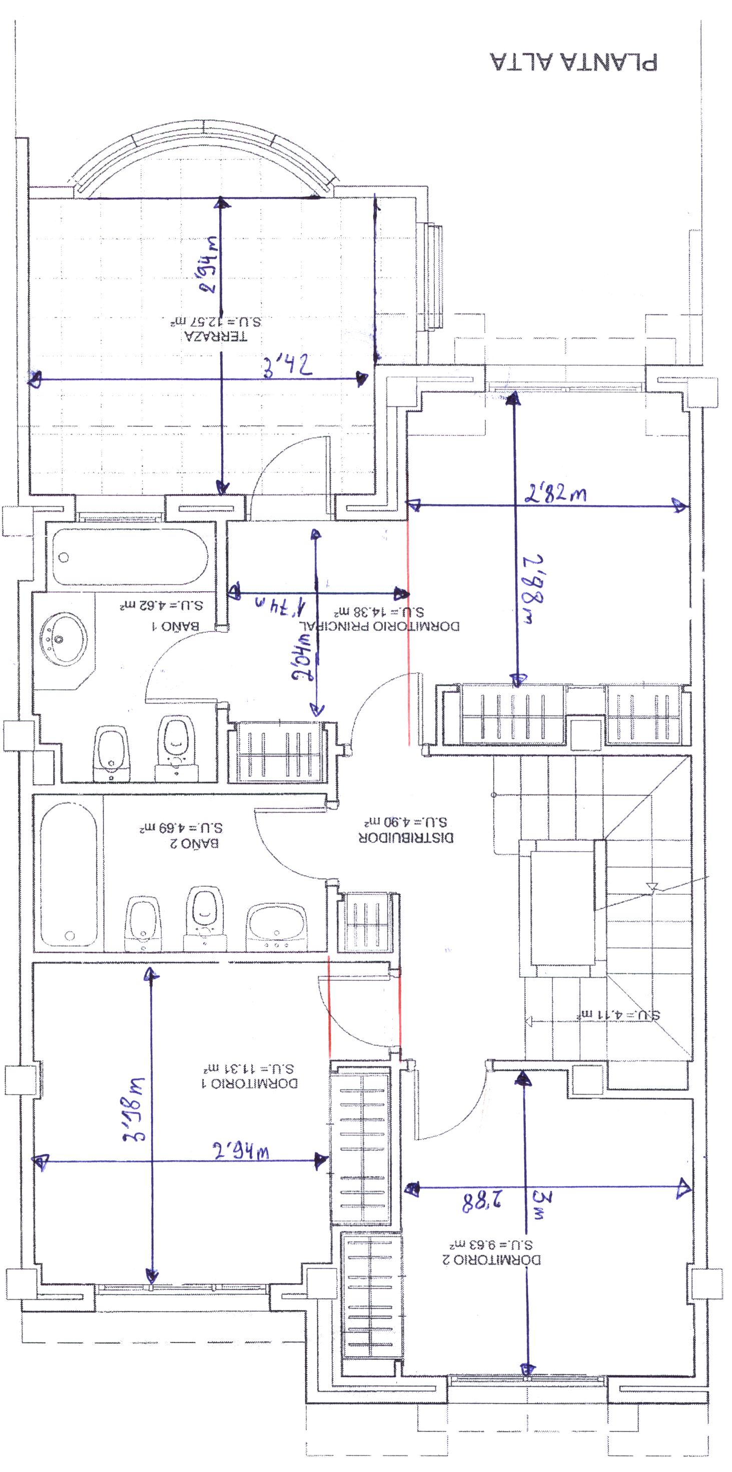
1ª Planta 1ª Planta
Descargar
ADMIN 6/6/2009 423
 
No hay  comentarios