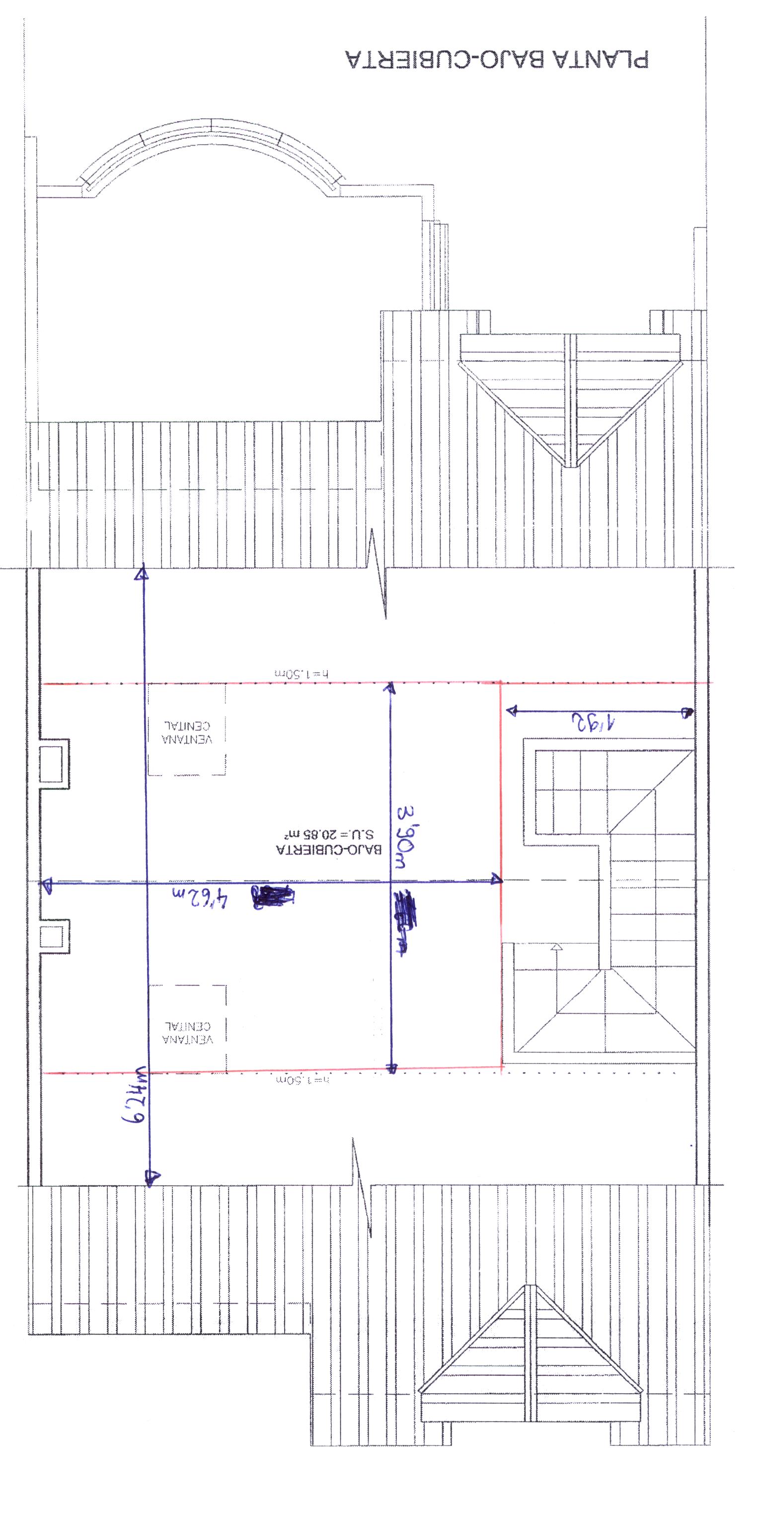
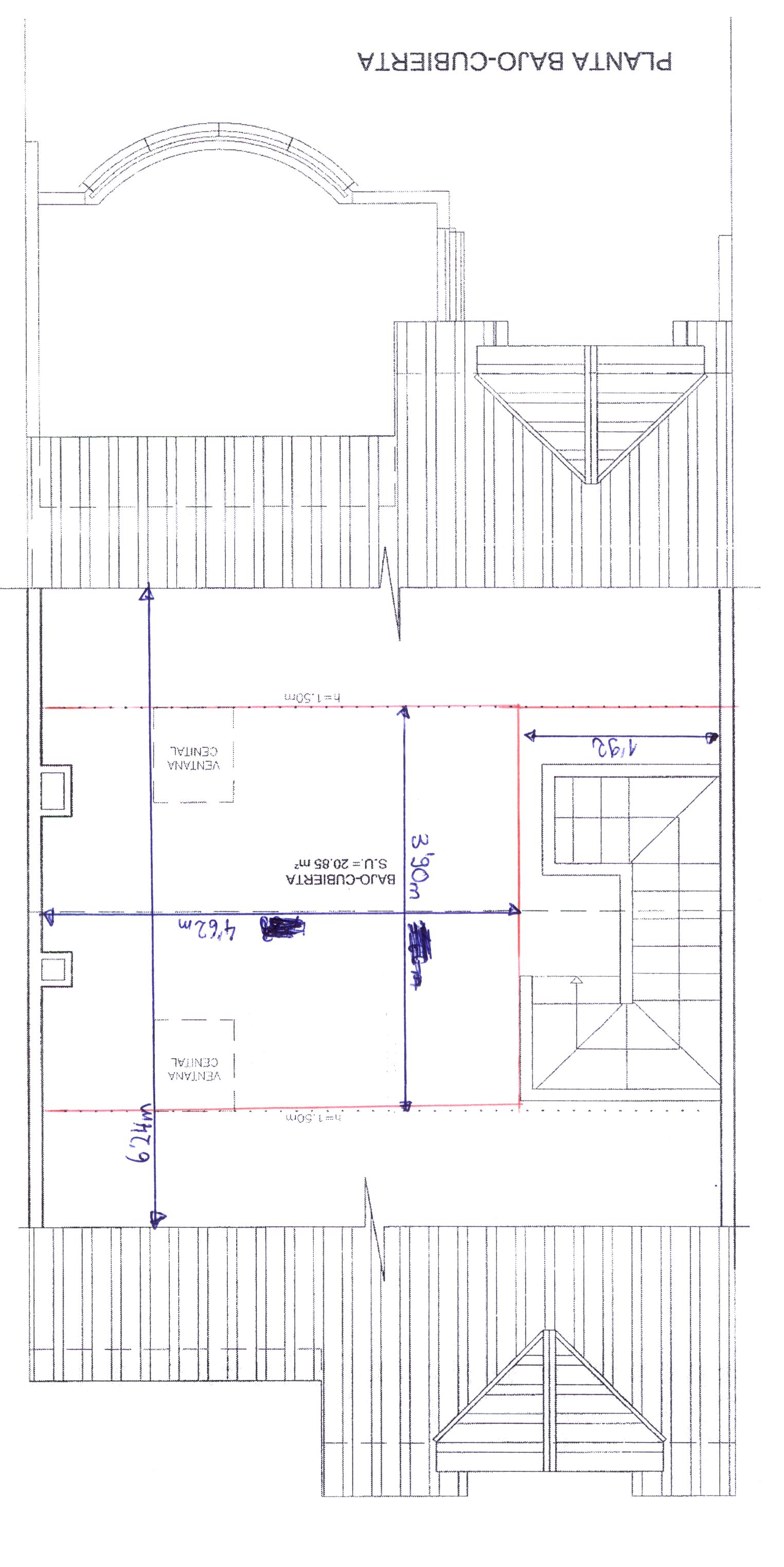
Planta Cubierta Planta Cubierta
Descargar
ADMIN 6/6/2009 492
 
No hay  comentarios