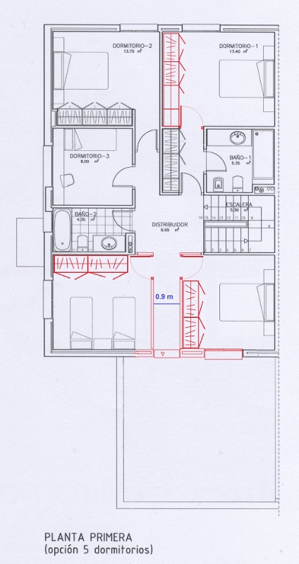
PROPUESTA PLANTA PRIMERA PROPUESTA PLANTA PRIMERA
Descargar
unicoyac 4/2/2011 536
 
No hay  comentarios