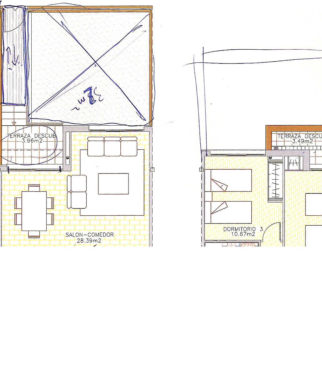
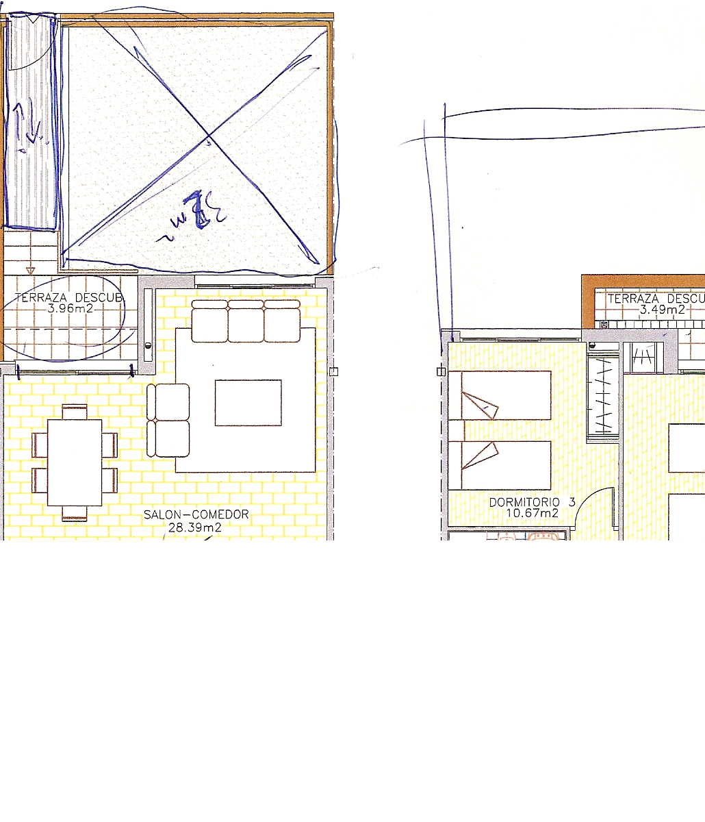
PARCELA 15 PARCELA 15
Descargar
ADMIN 6/6/2009 592
 
No hay  comentarios