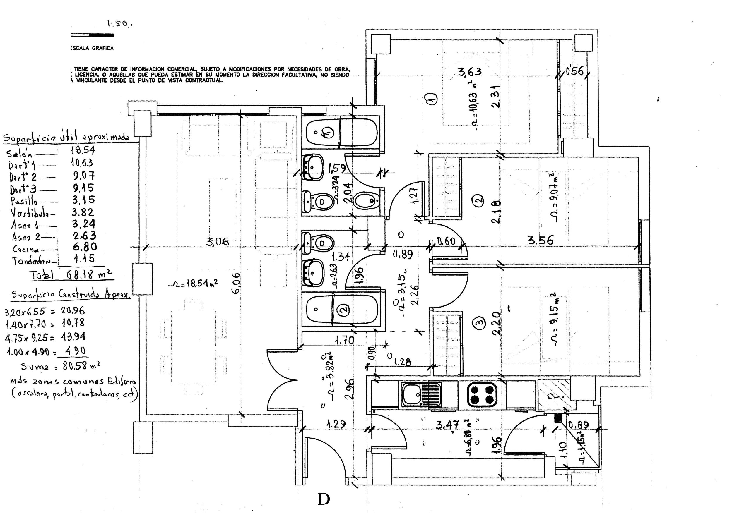
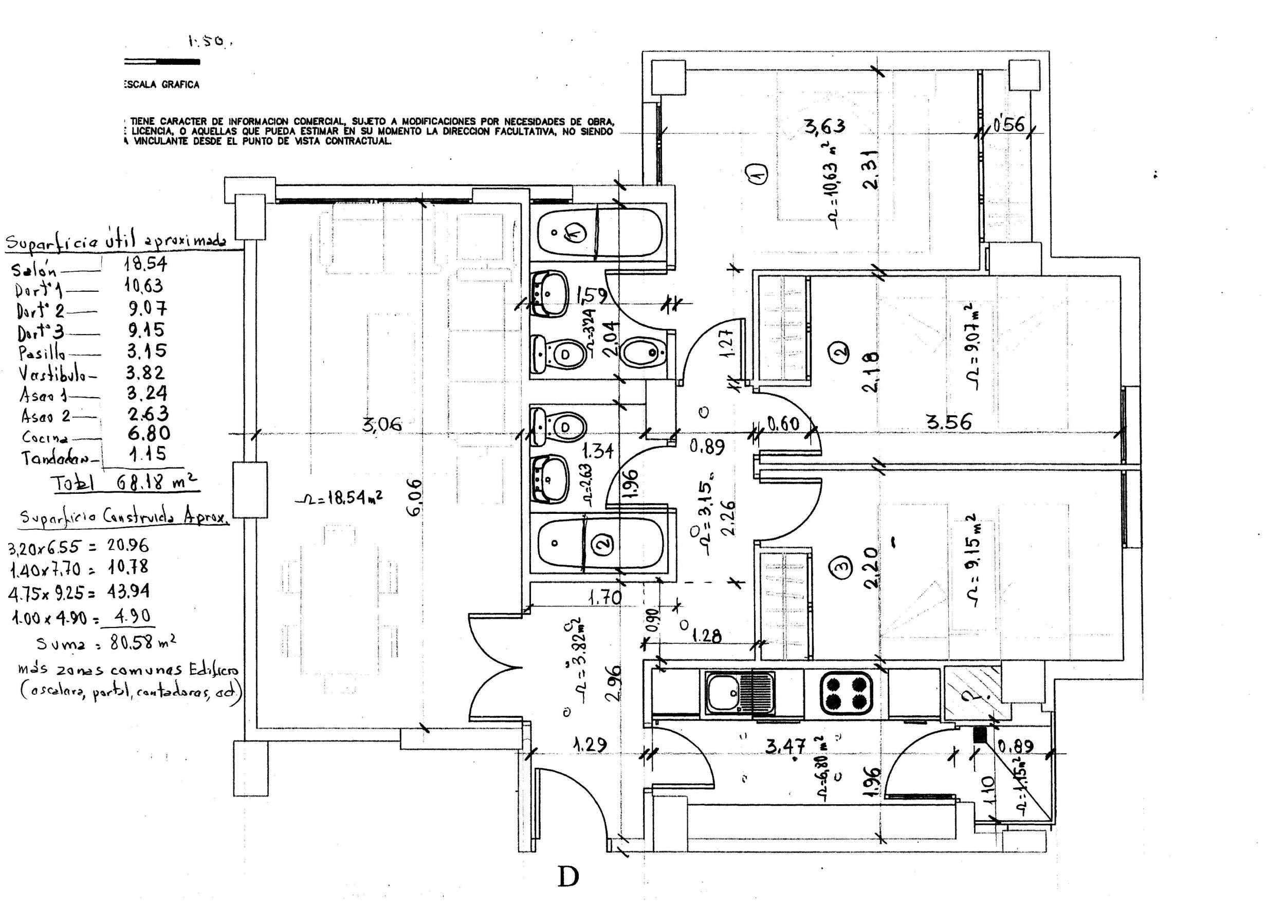
plano piso torre 4 plano piso torre 4
Descargar
ADMIN 6/6/2009 426
 
No hay  comentarios