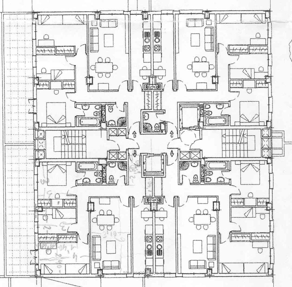
Plano planta completa Plano planta completa
Descargar
ADMIN 6/6/2009 5778
 
No hay  comentarios