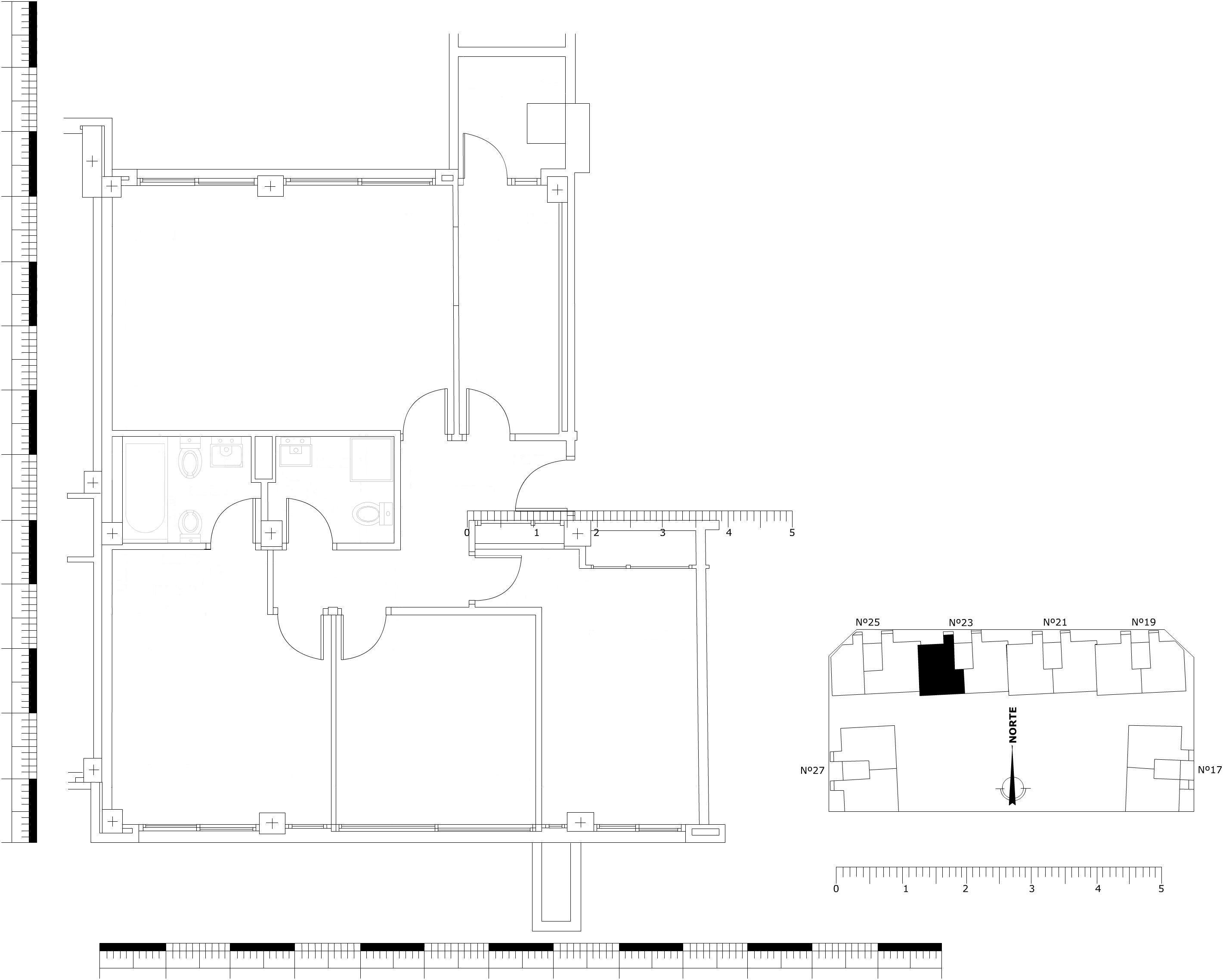
Plano V-10 3 dormitorios sin vestidor reforma baño Plano V-10 3 dormitorios sin vestidor reforma baño
Descargar
ADMIN 6/6/2009 4071
 
No hay  comentarios