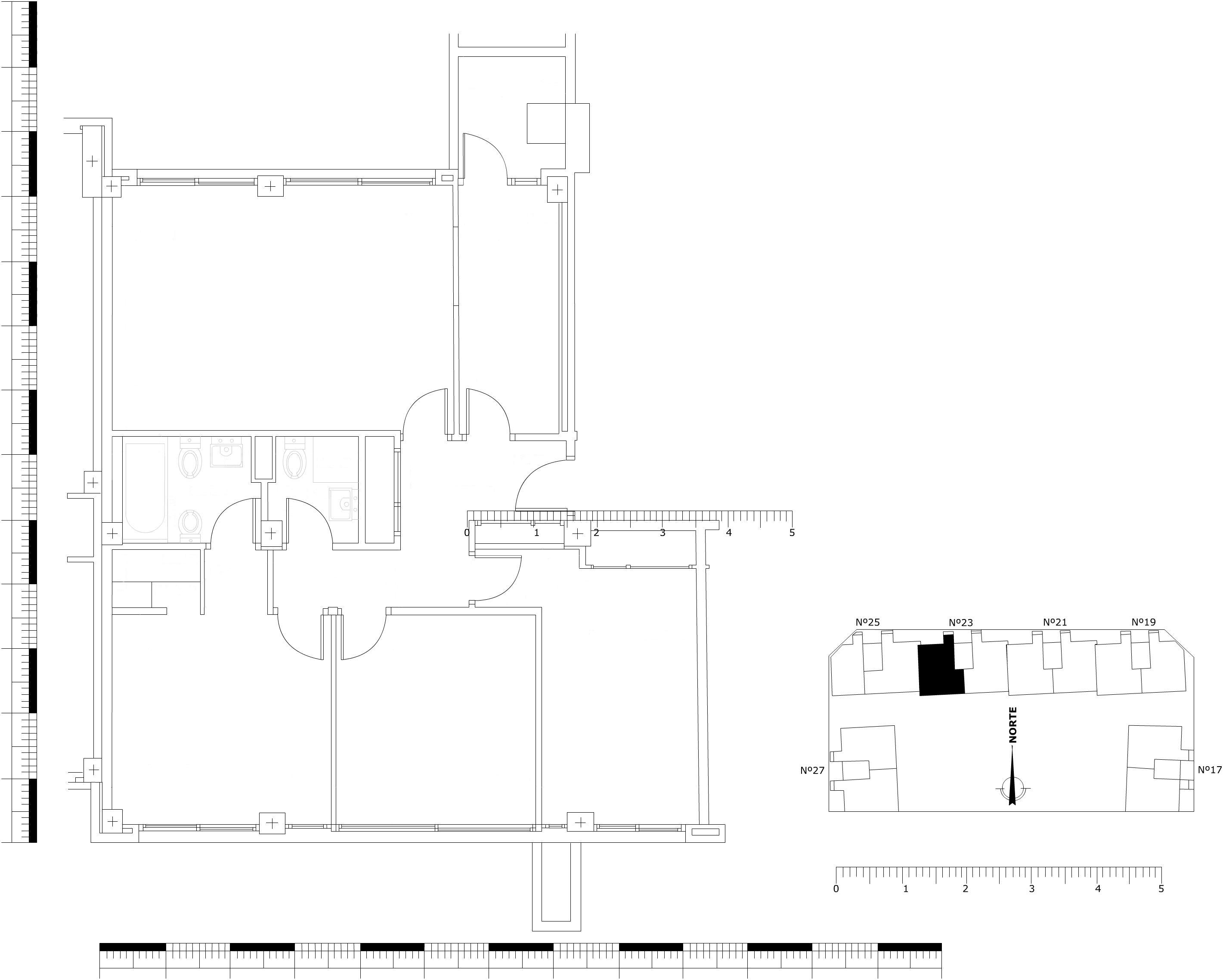
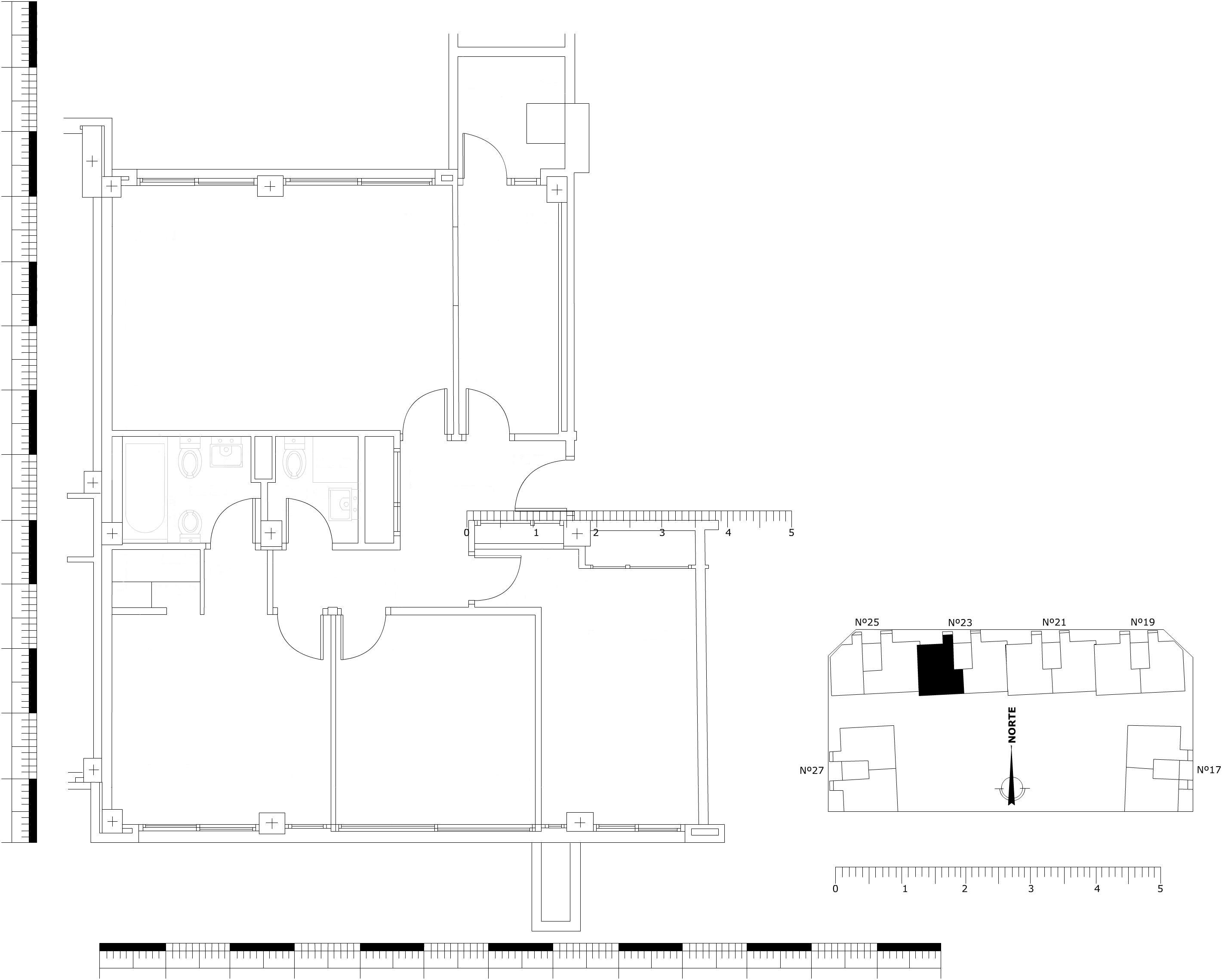
Plano V-10 reforma 3 dormitorios Plano V-10 reforma 3 dormitorios
Descargar
ADMIN 6/6/2009 539
 
No hay  comentarios