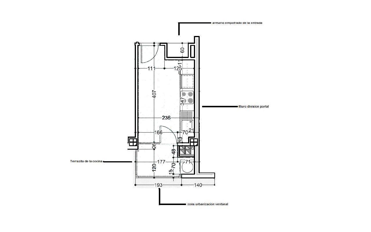
cocina perteneciente a las viviendas 3,1 cocina perteneciente a las viviendas 3,1
Descargar
nomada 25/1/2011 1207
1
13091977
25/01/2011 22:24

hola buenas noches
me gustaria que mandases la cocina de de la vivienda 4.1 si es posible , es de las de 3 dormitorios , haber si nos vamos haciendo una idea de nuestras cocinas
gracias

 
No hay  comentarios