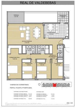
Plano 4 dormitorios Plano 4 dormitorios
Descargar
ADMIN 23/11/2011 682
 
No hay  comentarios