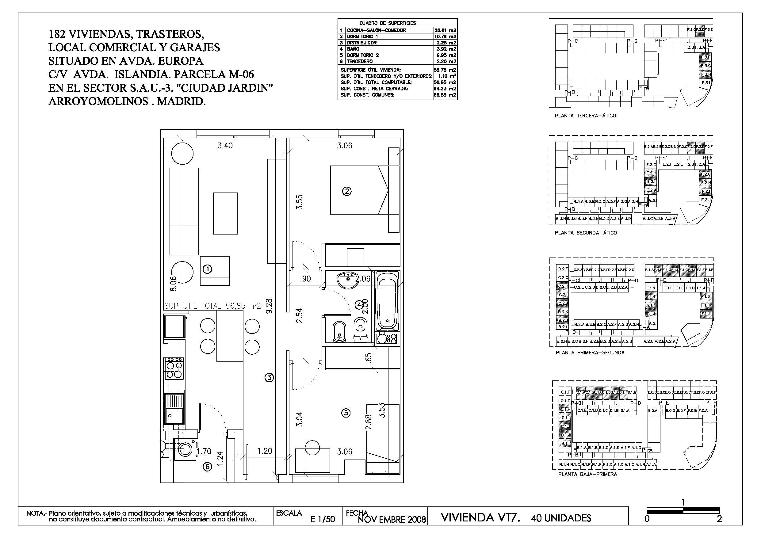
Este es el que me ha tocado! y el vuestro? Este es el que me ha tocado! y el vuestro?
Descargar
rakelyya 2/3/2011 580
 
No hay  comentarios