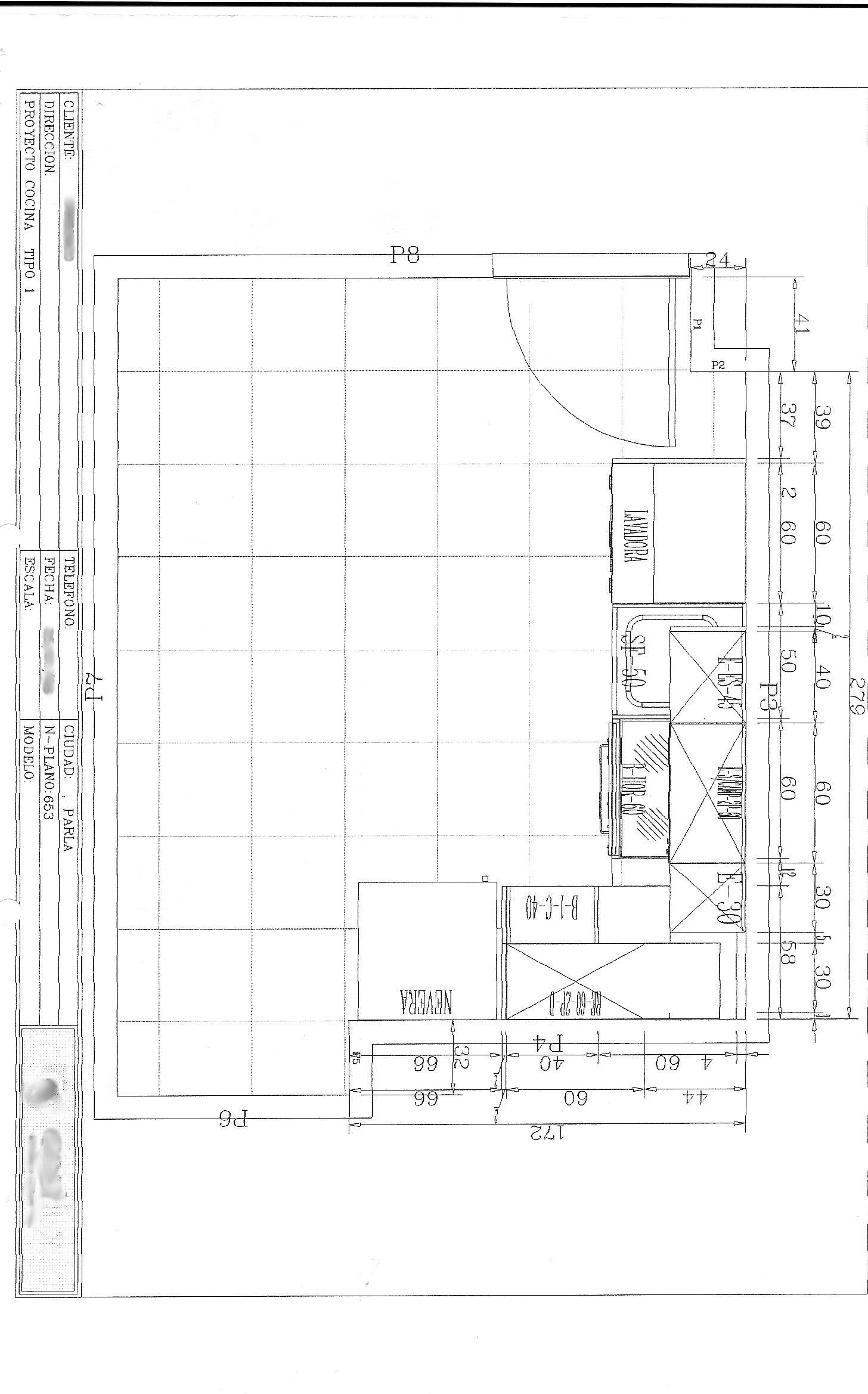
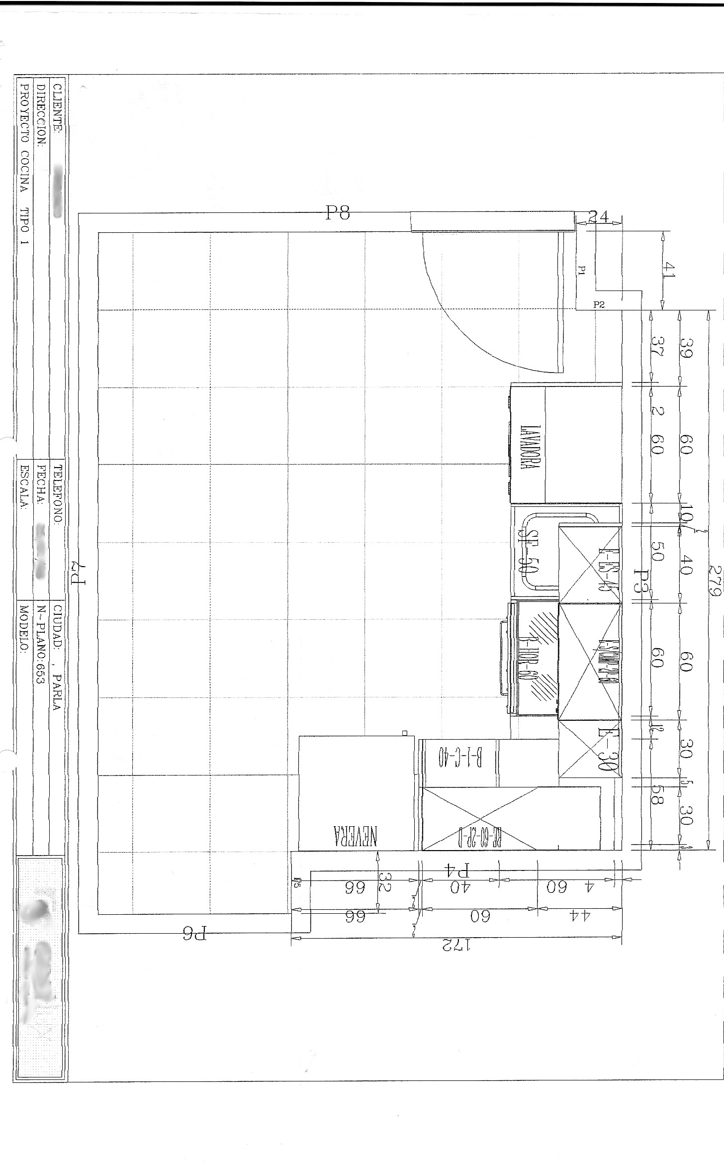
tipo 1
Descargar
ADMIN
6/6/2009
371
No hay comentarios