Volver al foro
Tracks
Tracks
19/09/2012 10:30

Colegio Antonio Fontan

¿Se están tomando medidas por el incumplimiento del ratio máximo en el colegio?

34.401 lecturas | 15 respuestas

Hola, he oido q despues de todos los jaleos q hubo para las matriculaciones, el inicio de curso sin algunas profes y el rollo de reubicar a los niños pequeños de 4 a 3 clases, estan incumpliendo con el ratio máximo establecido, sabeis si el ampa o algunos papas van a tomar alguna medida o algo? Gracias, un saludo.

 
AnaMariaGonzalez
AnaMariaGonzalez
20/10/2021 19:37
Hols, la peor experiencia de nuestra vida, bajo nivel, y una absoluta indiferencia de la direccion ante el bulling, dos niñas que salieron por este motivo y la directora no hizo NADA
 
T
tikitikis
12/01/2018 12:43

Hola!

Me encuentro la dificil tarea de encontrar colegio para mi hijo para el curso 2018-2019 en 2ª de Infantil (3 años) y me gustaría tener opiniones recientes de los colegios del bario. 

Papis/Mamis, que lleváis a vuestros hijos a este colegio (o algún otro del barrio), podéis dame vuestra opinión general.

Si alguno de vosotros tiene datosrelativos al proceso de admisión del curso actual (puntos de corte para entrar, si se quedaron muchos niños fuera, etc... ), también os agradecería mucho la información.

Gracias de antemano

 
P
papepipo
08/02/2015 20:54

Hola yo llevo a mi hijo  a 3 infantil y te diré que en su clase son 26 o 27 niños, que la construcción es vergonzosamente lenta para  un pais como éste , en que lo público ha estado siempre tan valorizado por los ciudadanos que no por los políticos, y debido a esto hay falta de espacio físico en aulas, zonas de recreo y de deportes, el comedor ciertamente deja  mucho que desear, pero se puede mejorar si se cambia de empresa suministradora o si la actual  ( Serunión )se compromete a subsanar sus deficiencias,  por lo que sé, esta empresa fue sancionada por la junta de Castilla y León.

Este será un cole estupendo cuando  exista, es decir  cuando esté completamente construido..

y si el M. Educación  no hay hay dinero que pidan un préstamo al banco  que a éstos se les ha rescatado con el dinero de todos por el bien de todos.    Y es de bien nacidos ser agradecidos....

 

 
P
papepipo
24/11/2014 11:24

yo llevo a mis hijos al A.F. me gustaria poder decir todo positivo pero no es así, empezo siendo de linea 3 y el año pasado se aumentó a 4, y por desgracia las obras de ampliación se van aprobando pero como tardan en dar el dinero  se construye con 1 año de retraso , esto supone falta de aulas para asignaturas , cursos y extraescolares.

El ratio de alumnos esta en torno a los 27.

EL AMPA ciertamente se mueve y hace lo que esta en su mano para mejorar esto, también intentan cambiar la empresa del catering que lleva el comedor, pues la gente se queja y con razón, no solo en este cole sino en empresas y otras comunidades donde trabaja esta empresa de catering. Pero al parecer la decisión final es de la directiva del colegio.

Nosotros en cuanto podamos llevaremos a los niños a casa a comer.

 

 

 
sarita34
sarita34
27/03/2014 19:43
Hola ,entonces para el próximo curso no habrá 3° de primaria?
 
V
vankillo13
05/02/2014 12:51

Se trata de un colegio bilingüe desde este curso por lo que es pronto para valorar el nivel. Te digo que al menos mis hijos vienen a casa y tienen inquietud en que les hablemos en ingles y en aprender. La coordinadora del ingles es un fenomeno y todos los niños estan encantadas con ella.

En el ultimo curso de infantil se refuerza el ingles para que los niños lleguen con mejor nivel a primaria.

Desde infantil hay actividad extraescolar de Ingles coordinando la metodologia desde el AMPA con el colegio.

 

 
M
monchito54
05/02/2014 10:59

Muchas gracias por contestar "vanquillo".

Supongo que todavía es demasiado pronto para ver los resultados, teniendo en cuenta que sólo tienen hasta primero de primaria, pero si los profesores y el equipo directivo está entregado todo llegará...

¿sabes qué tal el nivel de inglés? ¿Es un objetivo en la enseñanza?

 

 

 
V
vankillo13
04/02/2014 18:20
Yo llevo a mis hijos al Antonio Fontan y tengo que decir que es de las mejores ofertas educativas de la zona. El equipo educativo (directora, profesores/as) estan muy implicados.
Respecto al ratio, creo que no se ha inclumplido nunca, de hecho en primeria y algun curso de infantil el ratio es de pocos alumnos (18-20 niños por clase).
El cole no tienen comedor propio (como todos los de obra nueva), la comida se sirve de fuera. En las obras de ampliacion con el nuevo comedor hay una partte para hacer cosas a la plancha.
Alguien ha comentado que la comida es de mala calidad. Es totalmente falso. El menu es bastante completo y equilibrado. El AMPA ha realizado una comision de seguimiento del menu (formada por padres con conocimiento) y se revisa y buscan mejoras . Creo que pocos coles tienen esto.
Respecto al AMPA Y que hay pocas actividades extraescolares decir es un colegio pequeño (hasta primero de primaria) y conforme crece se realizan mas actividades. Por ejemplo hay ratito antes, ratito despues, ingles, predeporte, musica, teatro, baile, judo, natacion, dibujo, y seguro que me dejo alguna.
 
edudiez
edudiez
03/02/2014 12:42

digo_yo dijo:

Tengo entendido que el comedor es bastante malo  y si les tienes que dejar a comer, yo me lo pensaría... . Se oye cada cosa... 

 

...Ni te cuento lo que se lee. Si las artemisas hablaran.. 

 
M
monchito54
03/02/2014 11:34

Y qué es lo que se oye? La verdad es que sí que los tendría que dejar a comedor? Tienen cocina propia ¿no?

¿tienes algún contacto cercano al cole?

Gracias.

 
D
digo_yo
03/02/2014 07:51

Tengo entendido que el comedor es bastante malo  y si les tienes que dejar a comer, yo me lo pensaría... . Se oye cada cosa... 

 
M
monchito54
30/01/2014 10:31

Según he leido en prensa parece que ya se han terminado las obras de ampliación del colegio y que para el año que vine ofertan 225 plazas más para primaria ¿sabéis hasta que curso?

¿qué tal está el cole? ¿qué tal el nivel de inglés?

¿qué tal las actividades extraescolares? Me da la sensación de que hay muy pocas pero supongo que se irán incrementando...

¿Alguien que lleve a sus hijos allí me puede contar su experiencia?

Estoy pensando en llevar a mis hijos allí y si alguien me puede dar su opinión... Otra opción es el Infanta Leonor del que la verdad me han hablado fenomenal pero por cercanía me pilla mucho mejor el Antonio Fontán...

Gracias.

 
A
alfamovil
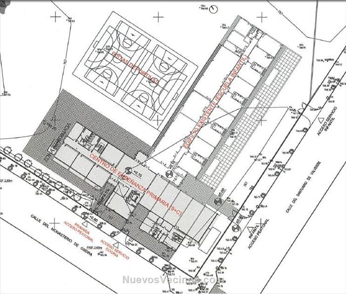
10/04/2013 17:17

Fotos del plano de la futura ampliación

 

 
avolaaar
avolaaar
09/04/2013 12:26

pregunton dijo:

Parece que comienzan las obras de la ampliación del colegio Antonio Fontán

 

 

Hombre!

por fin una buena noticia!

 
pregunton
pregunton
09/04/2013 09:56

Parece que comienzan las obras de la ampliación del colegio Antonio Fontán

 

Fin del hilo
© 2002-2026 - HABITATSOFT S.L.U. CIF B-61562088 C/ Roger de Lluria, 50 - P.1 08009 Barcelona
Contacto |  Publicidad |  Aviso Legal y Política de Privacidad  |  Política de cookies  |  Blog |  Catastro |  Facebook |  Twitter