Volver al foro
P
pitiflautico
05/08/2013 10:12

Ayuda para reforma y decoracion

Comedor con cocina integrada

3.979 lecturas | 8 respuestas

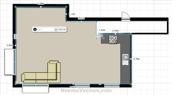
Hola amigos, tenemos la idea de hacer una reforma en casa y nos gustaria que nos ayudarais con la mejor distribucion posible, la idea es comedor con cocina integrada, y este es el plano, la condicion es que la cocina ha de ir donde esta por el tema de desagues y salidas de humo, etc. En estos planos hemos tirado 2 muros el muro de la cocina y el de una habitacion contigua.

 


OsTe explico, por un lado te dire que estamos abiertos a cualquier opcion, la barra americana es una de ellas, y por otro lado te adjunto el estado actual de la zona que queremos reformar, veras que estan la cocina y una habitacion anexa separadas, en el primer plano habia expuesto como habia pensado hacer la reforma tirando la habitacion y el muro anexo de la cocina, pero en este te muestro el estado actual por si puedes hacer una distribucion diferente.

 


Mucha gracias

 
AfKAR
AfKAR
15/03/2014 16:13

SOY VECINO DE ESTRELLAS DE VALDEBEBAS.

ME DEDICO A LA DECORACION  DE CORTINAS 

ESTORES

PANELES

CORTINAS 

INFOGRAFIA DIGITAL... ESTORES Y PANELES CON FOTOGRAFIA PANORAMICA.

DESCUENTO DE HASTA EL 25 % Y HABILITACION DE EXPOSICION EN ZONA COMUNITARIA CON PERMISO DE LA COMUNIDAD..

TF. 677. 302 151.

TODOS JUNTOS MAS VENTAJAS

 
R
rapidref
04/10/2013 11:58

Buenas ,

 

haber por lo que leo en los post y veo en tu primera idea,  lo que en principio te interesa es amplitud, pues bien mi sugerencia es olvidarte de isletas eso es muy moderno pero te reduce espacio si quieres hacer cerramiento, por tema olores o simplemente porque no te apetece fregar los platos y vienen visitas, yo partiria de un tamaño de cocina normal, pero en vez de tener tabique hacia el comedor poner pared de cristal ( da mucha amplitud), con puertas correderas del mismo material, asi la puedes abrir cuando te interesa o cerrar pero siempre teniendo la sensación de amplitud.

yo conozco una empresa en Barcelona que te puede hacer la reforma son profesionales y baratos!!! que es lo que importa cheeky

te dejo el numero 678776337

 
L
lulifacia
13/08/2013 12:15

... se me olvidaba el plano!

 
L
lulifacia
13/08/2013 12:14

Unas cotas rápidas por si te ayudan...

El vidrio también puede quedar muy bien, y si te animas con el vinilo por favor acuérdate de mi... estoy empeñada en aprender programas de diseño gráfico y tengo un amigo que me está ayudando bastante. Tienen una empresa de diseño y producción gráfica (...tengo que promocionarles!) y trabajan con vinilo: al ácido, impreso, de recorte... y si quieres que el vinilo esté personalizado o tenga algún diseño especial, ellos o yo lo podríamos hacer!!!

Suerte con tu reforma y si tienes alguna otra duda ya sabes...

Saludos.

 
P
pitiflautico
13/08/2013 11:04

Pues para empezar, muchisimas gracias por tus propuestas y por tu tiempo....

 

Te comento mis dudas estabas diciendo lo de las medidas de la cocina que no fueran muy grandes y por la disposicion del plano veo que asi a simple vista entre bancadas de cocina pueder haber 1,80 metros de distancia muy facil, me parece exagerado no?, yo despues de leerte tambien me habia hecho algunas ideas y ciertamente se parece a lo tuyo aunque un poco diferente.

 

Y era llevar la cocina en L por donde esta el balcon de la cocina, ( He de decirte que eso que parecen ventanas son todos balcones aunque los 2 mas pequeños son mas ventanas hasta el suelo, por que la parte practicable de balcon son  cuanto apenas 20 cm. )

Luego de la L habia pensando en separar esa parte que daria a la zona comun con un cristal con vinilo de 1.50 y detras 2 hojas de 75 correderas que cerraran hasta llegar al otro pilar, de esta forma se perderia la idea de la isla ( que aunque me gusta ) sinceramente despues de tus palabras y lo que yo pensaba prefiero tener una zona que se pueda individualizar de alguna manera, me faltaria toda la distribucion del otro lado y ademas teneiendo en cuenta que me gustaria hacer una zona de almacenaje de cosas para guardar lo tipico, aspiradora, libros etc.

Graciasssss

 
L
lulifacia
13/08/2013 10:56

Hola! Aquí están mis propuestas... me tienes que decir que te parecen. En realidad sólo son dos, pero cada una aparece en posición panel abierto o cerrado.

Es una pena, por que no se ven las cotas del último plano, pero debe ser bastante aproximado a la realidad y para que te hagas una idea te sirve.

Lo he hecho suponiendo que la puerta que aparece es la puerta de entrada a la vivienda, si fuera la entrada a la cocina... se podrían plantear otras cosas.

Cuéntame como lo ves, y si tienes alguna duda te explico... Una cosa a tener en cuenta, es que una cocina demasiado grande al final resulta incómoda: las zonas de trabajo tienen que ser amplias para facilitar el paso, pero tampoco demasiado para que todo quede cercano a todo y no te pases el rato que cocinas paseandote de un lado a otro. Las dimensiones aprox. de zona cocina quedan en 360x420cm (... un lujo de cocina la verdad, ya me gustaría a mi!!)

Mi voto es para la propuesta nº1. Saludos!

Propuesta 01_closedPropuesta 01_openedPropuesta 02_closedPropuesta 02_opened

 
P
pitiflautico
10/08/2013 19:52

Como si me interesaria una propuesta, por supuesto y ademas hazlo como a ti te gustaria que estuviera despues de tu experiancia con estancias abiertas, te subo un plano mucho mas detallado.

 

MUUCHISIMAS GRACIAS

 

 
L
lulifacia
09/08/2013 15:34

Y por curiosidad... esta estancia sólo va a ser comedor? o también sala de estar? lo digo por que yo siempre he tenido la cocina comunicada con mi sala de estar/comedor, y personalmente me encanta, pero hay que reconocer se hace un poco molesto a veces depediendo de lo que cocinas (imagina fritos, pescados, etc... el olorcito que queda), y también cuando hay invitados no me gusta nada que se vean las huellas de haber estado cocinando...manías.

Yo te recomendaría dejar las dos estancias comunicadas mediante algún sistema de paneles correderos, que habitualmente estén recogidos, pero para ocasiones determinadas lo puedas cerrar. 

Si te interesa, puedo inventar alguna propuesta (actuamente estoy en paro y empiezo a aburrirme... necesito distraciones!!!)

 

Fin del hilo
© 2002-2026 - HABITATSOFT S.L.U. CIF B-61562088 C/ Roger de Lluria, 50 - P.1 08009 Barcelona
Contacto |  Publicidad |  Aviso Legal y Política de Privacidad  |  Política de cookies  |  Blog |  Catastro |  Facebook |  Twitter