Volver al foro
D
diexel
12/08/2017 13:08

Distribución salón

Ayuda para distribuir los muebles del salón

2.331 lecturas | 3 respuestas

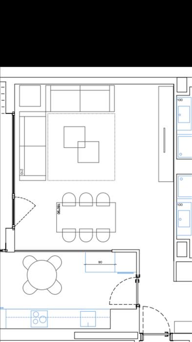
 Hola todos , soy un mar de dudas , de estos dos modelos de salón que distribución os parece el más adecuado, muchas gracias y saludos .

 
L
Luciana_Sanchez
07/09/2017 13:57

Hola diexel,

A mí me gusta más la segunda. Tienes un claro espacio para poner el mueble de la televisión (si es que quieres tenerla), y crea un poco más una zona aislada de descanso y otra para comer.

Dime si quieres que te ayudemos con la decoración y te podemos enviar algunas sugerencias con enlaces a las páginas web donde puedes comprar los artículos (y nos adaptamos a tu presupuesto para que no te gastes ni un céntimo más!)

Mucha suerte con tu nueva casa,

Luciana Sanchez

www.lucianasanchez.com

 

 
D
diexel
02/09/2017 16:16

 Muchas gracias por responder, lo que más me importaba era la distribución del salón ,el tema de la iluminación no es importante porque pondremos dos focos en la entrada y cuatro en el salón más la lámpara.

 
alexat
alexat
23/08/2017 12:44

Me gusta más la segunda, de la primera no me acaba de convencer la distrubucción de los puntos de luz, pienso que en la puerta de arriba no va a quedar bien iluminado y en el segundo buscaría que la iluminación quedara centrada y añadiría un punto de luz en la especie recibidor, pasillo que da acceso a las dos dependencias

 

Fin del hilo
© 2002-2026 - HABITATSOFT S.L.U. CIF B-61562088 C/ Roger de Lluria, 50 - P.1 08009 Barcelona
Contacto |  Publicidad |  Aviso Legal y Política de Privacidad  |  Política de cookies  |  Blog |  Catastro |  Facebook |  Twitter