Buenas tardes,
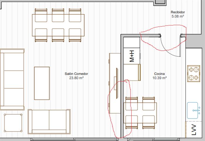
Me he comprado un piso y quiero juntar la cocina y salón sin que me cobre mucho la constructora. He pensado en no poner los tabiques que señalo en rojo pero no sé que distribución darle al salón si hago eso.
Mi idea es NO tener 2 mesas, sólo una grande donde hacer todas las comidas.
¿Me dais alguna idea?
Mil gracias.
