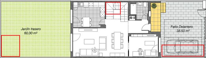
He aquí el gran “handicap” de este tipo de viviendas que no tienen ni buhardilla ni sótano.
Hay que inventarse algo para guardar esas cositas que no se usan siempre o que no deben estar a la vista.
De momento se me ocurre poner una caseta, pero no me convence ni me da el tamaño que requiero:

- En el patio delantero. Quizá sea la mejor opción, aunque también contemplo poner un porche en la zona indicada, para un sólo coche. No me gusta que esté tan a la vista…
- En el jardín trasero. Creo que menguaría demasiado el espacio de que disponemos.
- Debajo de la escalera. Algo pequeño para cierto tipo de objetos, lo veo más como un hueco para zapatos y otro tipo de cosas.
- Una de las habitaciones pequeñas. Si te sobran 
¿Qué opináis? Sí, soy un poco de darle vueltas a todo, que no os asuste jaja