Volver al foro
A
Altaro
02/10/2017 20:32

Modificación plano: Armario en el distribuidor

¿Es posible incluir un armario en el pasillo-distribuidor de nuestras futuras viviendas?

10.826 lecturas | 7 respuestas

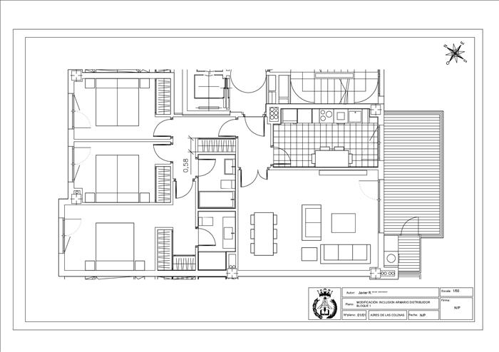
Buenas noches vecinos, como he llegado a saber que muchos de vosotros estais interesados en inlcuir un armario en el pasillo-distribuidor de nuestras futuras viviendas, me he tomado la libertad de dibujarlo de una forma mas técnica a fin de pretender que el arquitecto de nuestra promotora pueda considerar la inclusión del mismo en el proyecto final.

Si bien es cierto que se pierden metros en el aseo principal, son los mismos metros que ganariamos de armario a la entrada.

adjunto los planos de la nueva distribución para escuchar opiniones acerca del mismo:

Un saludo de vuestro futuro vecino,

Javier

 
S
SANLEGED
24/02/2018 11:06
Buenos días soy nuevo en el foro acabo de reservar una vivienda de la segunda fase.

Para el tema del armario del distribuidor a mí se me ocurre lo siguiente, no se usar Photoshop por lo que intentaré explicarme lo mejor posible.

Yo haría corredera la puerta del baño 2. Donde esta el lavabo pondría el armario y el lavabo lo adelantaría al no haber puerta que ocupara ese espacio. El retrete quedaría como metido entre el armario y la bañera.

No sería un armario muy grande pero creo que suficiente.

Lo voy a proponer a ver qué me dicen.

Un saludo !!
 
A
AlbertoMad
08/10/2017 11:18

Buenos dias a todos vecinos,

Respecto al asunto del tendedero, estoy de acuerdo en que lo ideal seria que tuviera acceso directo a la cocina, pero la manera en que lo han planteado es correcta, ya que lo han ubicado tras un muro y no resta ni luz ni visibilidad al salón. Si lo pusieran contiguo a la cocina, restaria luz y visibilidad a la cocina.

Por otro lado el lado ideal del armario es el que Pablus ha indicado, pero habría que cotejar el tema eléctrico con la promotora.

Y por último nos sumamos a las sugerencias de DRIVAS.

Vamos a pensar en mas sugerencias y en breve os hacemos saber.

Muchas gracias ¡¡¡¡

 

 
P
pablus_yo
05/10/2017 17:42

Tienes razón, no cai en que probablemente en esa pared están los cuadros de luces y demás.

Es posible que la puerta corredera esté entre las opciones de personalización que nos den y prefieran cobrarnosla, pero me parece una idea genial plantearla. No creo que haya problema con los paneles de luces si realmente estarán allí.

Los coches eléctricos están empezando y sería muy buena noticia que nos pusieran, aunque fuera la preinstalación(Alomejor está contemplado y no nos han informado)

Me gustaría añadir a tus mejoras:

  • Estudiar la posibilidad de añadir un bidé en alguno de los baños
  • Poner una pila adicional en el tendedero
 
D
Drivas
05/10/2017 14:24

Buenas tardes,

La idea de Pablus tambien es muy buena, pero es posible que en esa pared vayan los cuadros de luces, telefonillo…

Yo propongo otra idea… Ensanchar el vestidor del dormitorio principal (la habitación es muy grande y se podrían sumar 50 centimetros más de armario y aún así seguiría quedando un dormitorio bastante amplio) A ver que opinais los demás.

También he pensado que podríamos hacer una lista entre todos de mejoras para el proyecto final, y presentársela al arquitecto. ¿Qué os parece?

Empiezo yo…

*Añadir un cuarto de bicicletas comunitario (nuestros trasteros lo agradecerian...)

*Poner en los garajes carga para coches electricos ( en un futuro inmediato muchos de nosotros lo necesitaremos) ó al menos que pusieran la pre-instalacion en cada plaza.

*Que nos pusieran puerta corredera en las cocinas.

*Que la parte interior  de la carpinteria de aluminio  fuese blanca.

De momento se me ocurre ésto. Dar vuestras opiniones de qué os parece.

Un saludo a tod@s.

 

 
P
pablus_yo
03/10/2017 21:25

Hola Javier.

Me gusta la idea que aportas pero creo que va a estar complicado en algunos casos.

Si te fijas en los planos de las viviendas de los extemos de los bloques, el trozo que has recortado del baño principal es donde va el plato de ducha, puesto que en la pared de enfrente tienen una ventana.

A mi se me ha ocurrido otra posible solución. Creo que si se desplazara el muro tras la puerta de entrada a la vivienda hacia la cocina, podríamos tener un armario bastante cómodo aunque no tan grande como el que propones. Os dejo una idea aproximada a ver que os parece. 


Editado por pablus_yo 04/10/2017 12:14
 
M
Mousefather
03/10/2017 21:14

Tiene muy buena pinta. A ver que dice el resto. Saludos.

 

 

 

 
D
Drivas
03/10/2017 13:14

Buenos días,

Me parece genial la propuesta de Javier.

Aunque perderiamos algo del baño principal, ganaríamos un armario bastante grande. Y estaría bien que se pudiese proponer (si estamos todos de acuerdo) ó que se pudiese incluir como mejora.

Muchas gracias Javier por tu tiempo.

Saludos a tod@s.

 

 

Fin del hilo
Mensajes Relacionados
© 2002-2026 - HABITATSOFT S.L.U. CIF B-61562088 C/ Roger de Lluria, 50 - P.1 08009 Barcelona
Contacto |  Publicidad |  Aviso Legal y Política de Privacidad  |  Política de cookies  |  Blog |  Catastro |  Facebook |  Twitter