MIRALECHES dijo:
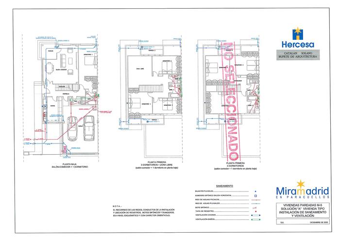
La "Previsión Desagüe piscina”
que HERCESA pone en sus planos, para casi todos los modelos de vivienda , están algo más profundos si tú vivienda es de las que tiene el Garaje por debajo del nivel del suelo. Yo encontré la “Y” donde concertar el tubo, a unos 90 cm de profundidad.
Pero ten cuidado con este tema, ya que ,aunque en los planos de HERCESA se estipula que puedes conectar el desagüe de la piscina a la toma de “Pluviales”, conozco casos en los que hubo y problemas con el equipo técnico del Ayuntamiento ya que decían que la piscina debía de estar conectada a la toma de “Fecales”. Según la Técnico que estaba entonces, el agua de la piscina contiene químicos, cremas etc… y no puede ir a pluviales.
En cualquier caso, antes de hacer nada , yo me informaría en el Ayuntamiento, no sea que tengas problemas.
Gracias por la respuesta. Es un desagüe sin más, no para piscina.
He encontrado unos planos donde aparece la citada previsión para desagüe de piscina, está un poco más alejado de donde había excavado si el plano es correcto claro.
Un saludo.
