Volver al foro
J
jardinesdelcarmen
26/02/2018 21:53

Distribuciones

10.239 lecturas | 48 respuestas
Hola. Qué distribuciones pensáis hacer???
 
R
Robair
19/05/2018 12:32
Son las del tipo 1 , que son mas estrechas. Las 18 primeras de la fase IV también son así. Lo que veo Mando es que la fase 3 lleva mucho retraso, todavía no habéis decidido cómo va a ser la distribución??.
 
V
Vicisa
18/05/2018 17:14
Te refieres a las de tipo 1 o tipo 2?
 
Nano15
Nano15
18/05/2018 14:32

Hola,

Estoy con las distribuciones y no consigo que encajen...¿Os habéis dado cuenta de que nos dejan una gran parte de la casa de apenas 5m de ancho? Es un pasillo….Las de la Fase I y II tienen 1m más, y las de esquilo se van a 7m…

Siempre he leído que el mínimo ancho eran 6m, pero aquí no se cumplen….en fin, se me están quitando las ganas...

 
J
jardinesdelcampoIIIOIV
02/05/2018 22:56

Buenas noches a todos. ¿Qué tal vais con las distribucciones de vuestras casas?

Nosotros estamos ahora con la organización, con la distribucciones y peleándonos con los planos porque no tenemos claro nada. ¿Alguien ha tenido la primera reunión con el departamento de cambios? ¿Os ayudan con la organización, planos, ideas???

Mucho ánimo y muchas gracias.

 

 
J
jardinesdelcampoIIIOIV
10/04/2018 21:25

Hola!

Efectivamente, parece que todo se vuelve a activar. Pero sin ningún cambio... y por el momento..., sin ninguna explicación (al menos a nosotros). La verdad es que parece que nos han tomado el pelo haciendonos esperar éste tiempo, y sin ningún resultado positivo.

Tendremos que confiar que no volvamos a tener más retrasos de éste tipo...

¿A alguien le han dado alguna explicación?

Sabéis si tras el pago de los 37.000 euros, nos proporcionan el acceso a la web para comenzar a elegir materiales?

 

 
J
jardinesdelcarmen
10/04/2018 19:02
Y para qué os han tenido esperando si no han cambiado nada????
 
R
Robair
10/04/2018 19:00
Hola , pues sí es una pena, espero que en la cuarta fase vuelvan a hacerlas como en la 3.
Por cierto los de la fase 3 , os han dado ya las claves para elegir?.
Un saludo.
 
Nano15
Nano15
10/04/2018 14:14

Hola. Parece que al final no va a haber cambios sobre las dimensiones de las parcelas ni sobre los planos. Me gustaba la idea de hacer la casa más ancha y corta y dejar más espacio en el lateral para el coche.

Respecto a las dos columnas, las han tenido que meter porque la casa es más larga y por normativa tiene que haber una columna cada x metros. Las fases I y II tienen las casas más cortas y solo se necesitaba una columna. Se pueden mover junto con la escalera y el coste es de 490€.

Lo dicho, una pena…

 
J
jardinesdelcampoIIIOIV
04/04/2018 19:31

Hola,

Tenéis alguna noticia sobre el estado de comercialización de la fase III? Nos quedamos más tranquilos sabiendo que no somos los únicos, pero seguimos preocupados porque no tenemos ninguna noticia sobre cómo estan avanzando los trámites.

Esperamos que estos cambios no los repercutan en el precio…

 

 

 

 
LoPeLeDa
LoPeLeDa
26/03/2018 15:42

valde15 dijo:

jardinesdelcampoIIIOIV dijo:

Hola Buenas noches a todos. Os escribo para saber si a alguien de la FASE III os ha pasado lo mismo que a nosotros. El miércoles ibámos a realizar la trasferencia y el viernes ibámos a firmarlos contratos nuestra casa de la FASE III, cuando nos llamaron ayer para comunicarnos que no hiciéramos el pago y que no fuéramos a firmar porque iban  a hacer modificaciones en los planos y nos recomenbaron que formáramos cuando tuveran los planos definitivos. Nos ha llamado la atención este cambio tan repentino,  y no sabemos que pensar. Si alguien se encuentra en la misma situación, por favor, compartanlo con nosotros para saber que os han comuncado en cada caso. Un saludo a todos.

 

 

 

 

 

SI! a nosotros también, pero va a ser porque ganamos algún metro más en casa y parcela (vamos nos dijo que era mínimo)  aupongo que a medida que van avanzando con las obras van ajustando al máximo… mientras sea en positivo no me preocupa!

Mientras sea en positivo y sin cambio de precio, que es lo que me preocupa a mi.

 
V
valde15
23/03/2018 14:38

jardinesdelcampoIIIOIV dijo:

Hola Buenas noches a todos. Os escribo para saber si a alguien de la FASE III os ha pasado lo mismo que a nosotros. El miércoles ibámos a realizar la trasferencia y el viernes ibámos a firmarlos contratos nuestra casa de la FASE III, cuando nos llamaron ayer para comunicarnos que no hiciéramos el pago y que no fuéramos a firmar porque iban  a hacer modificaciones en los planos y nos recomenbaron que formáramos cuando tuveran los planos definitivos. Nos ha llamado la atención este cambio tan repentino,  y no sabemos que pensar. Si alguien se encuentra en la misma situación, por favor, compartanlo con nosotros para saber que os han comuncado en cada caso. Un saludo a todos.

 

 

 

 

 

SI! a nosotros también, pero va a ser porque ganamos algún metro más en casa y parcela (vamos nos dijo que era mínimo)  aupongo que a medida que van avanzando con las obras van ajustando al máximo… mientras sea en positivo no me preocupa!

 
J
jardinesdelcampoIIIOIV
22/03/2018 22:35

Hola Buenas noches a todos. Os escribo para saber si a alguien de la FASE III os ha pasado lo mismo que a nosotros. El miércoles ibámos a realizar la trasferencia y el viernes ibámos a firmarlos contratos nuestra casa de la FASE III, cuando nos llamaron ayer para comunicarnos que no hiciéramos el pago y que no fuéramos a firmar porque iban  a hacer modificaciones en los planos y nos recomenbaron que formáramos cuando tuveran los planos definitivos. Nos ha llamado la atención este cambio tan repentino,  y no sabemos que pensar. Si alguien se encuentra en la misma situación, por favor, compartanlo con nosotros para saber que os han comuncado en cada caso. Un saludo a todos.

 

 

 

 

 

 
V
valde15
20/03/2018 09:55

sobre los 490€ nos dijo… se supone que en la parte de abajo de los cambios estructurales debería de poner los costes de todos ellos, pero se les ha escapado y no indica nada.. en algún momento nos los tendrán que enviar, y sino imagino que cuando queramos hacerles ya nos lo dejaran claro.

 

Un saludo!!!

 
LoPeLeDa
LoPeLeDa
20/03/2018 08:47

valde15 dijo:

Hola de nuevo!

si he confirmado que las columnas se pueden mover, pero bajo coste… Es decir, entiendo que las ponen aposta para tener que pagar por moverlas porque sino no le veo ningún sentido estético a tener 2 columnas plantadas en medio de casa.

 

De que coste estamos hablando valde15???

 
V
Vicisa
19/03/2018 18:09

alrisan dijo:

Hola,

las columnas se pueden mover, de hecho en los que están construyendo en la Fase I he visto diversas opciones, pero en todos ellos veo una única columna en la planta baja, por lo que creo que esos planos no son definitivos. Lo que tampoco se puede hacer es poner la escalera a lo largo pegada a la pared, que yo sepa o va en una pared o va justo enfrente, pero nunca a lo largo, siempre en giro de 180º.

Saludos

¿lo de la escalera lo sabes seguro? ¿o solo lo crees? porque me rompe todo el diseño crying

 
V
valde15
19/03/2018 17:27

Hola de nuevo!

si he confirmado que las columnas se pueden mover, pero bajo coste… Es decir, entiendo que las ponen aposta para tener que pagar por moverlas porque sino no le veo ningún sentido estético a tener 2 columnas plantadas en medio de casa.

 

 
J
jardinesdelcampoIIIOIV
14/03/2018 15:13

Hola.

Acabo de incorporarme nueva al chat y estoy un poco perdida. He estado leyendo todos los comentarios y viendo vuestros planos y me han gustado mucho.

Nosotros estamos pendientes de confirmar en la fase III, y si al final nos decantamos en esta fase tendré que comenzar con los planos. 

Lo que me ha preocupado que yo no me habia percatado es de los dos pilares que habeis mencionado, pensaba que solo disponiaoms de un pilar para poder hacer toda la planta primea diáfana. 

espero seguir leyendo cosas vuestras y poder ir enterándome de más cosas.

Muchas gracias 

 

 
V
Vicisa
14/03/2018 13:22

LoPeLeDa dijo:

Buenos días,

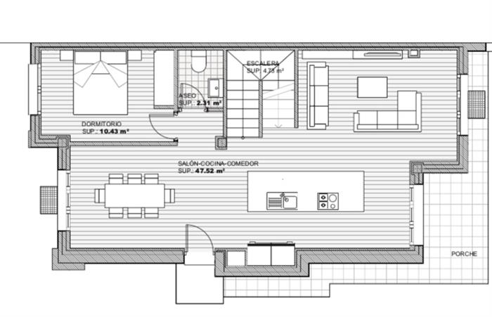
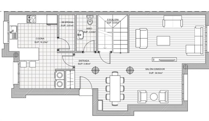
Estoy pegandome con planos de las distintas opciones que nos planteamos, pero no tengo clara la parte de la escalera. Según los planos que nos remiten de la escalera en forma de U mide 4,90 m2, es decir 1m de ancho por lado x 2,50 m de largo, sin embargo con la aplicación Homebyme por defecto te viene de 90cm de ancho por lado x 1.87 de fondo, lo que supone 3.36m2. ¿Alguien sabe que altura hay entre plantas para intentar calcular el tamaño real de la escalera?

en homebyme puedes modificar el tamaño de la escalera, cuando estás en vista 2D pinchas dos veces en la escalera y después en editar

 
LoPeLeDa
LoPeLeDa
14/03/2018 12:37

Buenos días,

Estoy pegandome con planos de las distintas opciones que nos planteamos, pero no tengo clara la parte de la escalera. Según los planos que nos remiten de la escalera en forma de U mide 4,90 m2, es decir 1m de ancho por lado x 2,50 m de largo, sin embargo con la aplicación Homebyme por defecto te viene de 90cm de ancho por lado x 1.87 de fondo, lo que supone 3.36m2. ¿Alguien sabe que altura hay entre plantas para intentar calcular el tamaño real de la escalera?

 
A
alrisan
13/03/2018 11:15

Hola,

las columnas se pueden mover, de hecho en los que están construyendo en la Fase I he visto diversas opciones, pero en todos ellos veo una única columna en la planta baja, por lo que creo que esos planos no son definitivos. Lo que tampoco se puede hacer es poner la escalera a lo largo pegada a la pared, que yo sepa o va en una pared o va justo enfrente, pero nunca a lo largo, siempre en giro de 180º.

Saludos

 
V
Vicisa
08/03/2018 14:43

valde15 dijo:

Chicos os pongo La foto de la estructura q nos gustaba con el cambio de escalera en un inicio  y la q correspondería con la fase III, que al hacer cambio de escalera quedan los dos pilares en el medio! Además si os fijáis la parte de entrada a la casa se ve reducido el lateral..

 

Gracias por poner tu plano, a lo mejor se pueden mover las columnas a otro lugar no? igual se pueden poner en ambos lados de la escalera, no sé existirá esa opción 

 
J
jardinesdelcarmen
06/03/2018 22:09
Le has preguntado a David?? Si te fijas, la foto de arriba tiene dos pilares, uno en la escalera y el otro en la pared de arriba a la derecha.
 
V
valde15
06/03/2018 19:02

Chicos os pongo La foto de la estructura q nos gustaba con el cambio de escalera en un inicio  y la q correspondería con la fase III, que al hacer cambio de escalera quedan los dos pilares en el medio! Además si os fijáis la parte de entrada a la casa se ve reducido el lateral..

 
LoPeLeDa
LoPeLeDa
06/03/2018 11:46

En el correo que mandó David el 5 de febrero con el asunto “Fase III. Planos y Precios”, hay un .pdf cuyo nombre es “Plano Ventas Jardines III”.

 
A
alrisan
06/03/2018 11:31

LoPeLeDa dijo:

Yo no tengo el mail que indica valde15, pero entiendo que se refiere a estas dos columnas que se ven en la imagen.

Hola LoPeLeDa, de dónde has sacado esa imagen? En la documentación que yo tengo de las Fases I y II, sólo hay una columna, que se puede mover y colocar pegada a la escalera, como cambio de estructura, por lo que no sería problema.

Saludos,

 
LoPeLeDa
LoPeLeDa
06/03/2018 10:16

Yo no tengo el mail que indica valde15, pero entiendo que se refiere a estas dos columnas que se ven en la imagen.

 
V
Vicisa
05/03/2018 23:07
Si alguien pusiera la imagen del plano sería genial para ver donde están esas columnas, yo en mi distribución puse una que vi en el plano, pero ahora ya no sé si estará bien puesta, y ¿dónde irá la otra? . Nosotros esperamos entrar en la fase 4 que supongo que serán igual que la fase 3. Si podeis ponerlo lo agradecería mucho.
 
J
jardinesdelcarmen
05/03/2018 21:45
Y dónde van esos pilares??? Qué distribución tenías pensada??
 
V
valde15
05/03/2018 19:39

LoPeleDa, a nosotros nos lo han enviado el viernes con el contrato de compra de la parcela y para hacer ya la transferencia de los 37.000€… me he llevado un fiasco muy grande porque no me acaba de cuadrar la distribución que quería...nos han quitado algún metro de ancho pero tengo q ver si nos lo compensan con el largo(q lo prefería en ancho que más largo no lo necesitaba)

 
LoPeLeDa
LoPeLeDa
05/03/2018 16:28

A nosotros aún no nos ha llegado dicho correo. ¿Cuando os lo han enviado?crying

 
V
valde15
05/03/2018 16:10

Hola a todos!

Los q habéis cogido fase 3. Os han llegado los planos d distribución d las casas? Q os parece q al cambiar las casas ligeramente haya un par d pilares en medio de casa que como quieras diseño abierto cn cambio de escalera te quedan literalmente en medio de tu casa?

 

 

 
J
jardinesdelcarmen
27/02/2018 20:47
Madre mía!!! Con vuestros diseños os compro las dos!!!!
 
J
jardinesdelcarmen
27/02/2018 20:39
Es verdad!!! Ya lo dijo antes alguien en el foro. Lo intenté con el móvil y no me dejaba y ya lo he intentado con el ordenador y sí puedo.
 
V
valde15
27/02/2018 18:33

Jajajajaj! Me encanta para lo queda la imaginación! Nose si fue con la fase II que enviaron opciones de distribución cn cambios de escaleras verdad? 

Nosotros nos gustaría cambiar la escalera de lado y dejar también salón comedor y cocina abierto y un pequeño aseo y dormitorio/despacho en la playa de abajo.

Arriba nos gustaba la idea de dos habitaciones pero la verdad que con el espacio que hay podemos hacer 3 y aprovechamos para las visitas!

 
rocamj
rocamj
27/02/2018 17:38

La verdad es que la página es un vicio… 

 
rocamj
rocamj
27/02/2018 16:45

jardinesdelcarmen dijo:
Para bajar la lavadora al sótano hay que poner una válvula o no se qué. Eso cuánto vale??? Y si se estropea la válvula???

Pues supongo que sí, pero no creo que sea demasiado caro… creo que unos 400€

 
V
Vicisa
27/02/2018 16:02

Es una web que deja hacer planos en 3d, está muy bien. Se llama Home.by.me 

Está guay para hacerse a la idea de las medidas y para pasarse las horas muertas jaja

 
J
jardinesdelcarmen
27/02/2018 15:53
Para bajar la lavadora al sótano hay que poner una válvula o no se qué. Eso cuánto vale??? Y si se estropea la válvula???
 
J
jardinesdelcarmen
27/02/2018 15:46
Parecen mansiones!!!!!
 

Fin del hilo
49  mensajes12>
Mensajes Relacionados
  • 172 (2018)
  • 149 (2018)
    © 2002-2026 - HABITATSOFT S.L.U. CIF B-61562088 C/ Roger de Lluria, 50 - P.1 08009 Barcelona
    Contacto |  Publicidad |  Aviso Legal y Política de Privacidad  |  Política de cookies  |  Blog |  Catastro |  Facebook |  Twitter