Volver al foro
V
VRP
12/02/2018 16:12

Redistribución de las viviendas

¿Cómo contactar con el dpto de redistribución y hacer preguntas adicionales?

5.833 lecturas | 33 respuestas

Buenas tardes, a todos

Creo este tema para no liarnos con otras conversaciones.

Tengo una duda a la hora de contactar con el dpto de redistribución. Sé que es únicamente por e-mail pero si hay cosas que preguntarles, ¿se lo tengo que mandar junto con la solicitud de redistribución que tenemos en mente? ¿O se puede mandar a parte? Es que depende de si se pudiese o no, haríamos una cosa u otra. 

En la guía pone los siguiente: “Dada la complejidad del proceso, y ante la duda de si es posible solicitar algún cambio en esta fase de redistribución, les recomendamos que incluyan sus dudas en la solicitud. El equipo de redistribución les contestará gustosamente si dichos cambios son posibles o no.”

No quiero que una pregunta me cuente como una de las opciones

Gracias

 

 

 
VecinoFeliz
VecinoFeliz
02/05/2018 22:50
Buenas noches vecinos

Nosotros también estamos contentos con la redistribución.
Prácticamente todo lo que queríamos ha sido aceptado. Hemos ampliado un poco la cocina, cambiado los armarios de las habitaciones pequeñas, ampliado un baño y modificado la distribución del otro y hemos puesto entrada al baño y vestidor independiente por nuestra habitación...

Ya sólo queda esperar a que nos den prontito la licencia y empiecen las obras! Ya queda menos! ??

Un saludo!
 
T
tak
30/04/2018 13:21

Hola! Nosotros nos mandaron un correo diciendo que teniamos dos semanas para entregar los cambios, ya que habiamos entrado de los ultimos en la promoción, aun así, los cambios que hemos propuesto nos los han concedido….cambio de ubicacion de armarios empotrados en las habitaciones de niños, ampliación de cocina y salon. Lo que no hemos podido modificar han sido la ubicación de los sanitarios de los baños, imagino que por tema de bajantes. Por cierto, los de cocinas río un desastre….fuimos con nuestro plano de cocina modificado y sacarón mal las cotas....menos mal que era solo orientativo para ubicación de electrodometicos y para eso no nos afecta.

 
C
ClassJyS
17/04/2018 16:24

A nosotros también nos han concedido los cambios hemos movido algún tabique hemos hecho mas grande los baños y también hemos movido una puerta, nosotros no hemos movido nada del vestidor porque nos parecía bien,si es verdad que cambia mucho los vestidores de una vivienda a otras ya que si ves los planos de los que quedan casi parece inesistente el vestidor en nuestro caso no fue así y lo hemos dejado igual por lo que el resto de cambios si han sido posibles. 

Un Saludo 

 
D
dwg
17/04/2018 15:59

Yo igualmente estoy satisfecho con el procedimiento. Desde luego es una posibilidad que creo que no todo el mundo puede decir que tenga en otras promociones.

Nosotros hemos solicitado modificaciones en la ubicación de tabiquería y armarios empotrados de dos dormitorios y de  la distribución de un baño y nos los han aceptado.

También solicitamos cambio de ubicaciones de tomas de electricidad y datos para rotar el sentido de la distribución del mobiliario del salón y nos lo desaconsejaron y les hemos hecho caso.

El único punto que nos han rechazado (por cambio de calidades en elementos vistos) es la supresión de la puerta de salida a la terraza que pedimos cambiarla por una ventana.

Saludos,

 
N
Novak05
17/04/2018 09:51
Hola vecinos!

Pues nosotros estamos contentos con el resultado de nuestra distribución, lo único que no hemos podido hacer ha sido lo de eliminar el vestidor. Al final adaptamos las medidas del mismo a lo que mejor nos venía. Por lo que nos dijeron, al venir en la memoria de calidades no se puede eliminar, es como si quieres eliminar la terraza.

Lo que nos parece mejorable es el sistema para comunicarte con ellos, son muy estrictos, y si las consultas se pudieran hacer por teléfono, se agilizaría bastante el proceso. También es cierto, que ha habido veces que sus respuestas han sido muy escuetas y hemos tenido que volver a preguntar.

Seguro que al final queda genial vecinos! no os desaniméis!

Un saludo!
 
S
salva6
16/04/2018 13:42

Buenos días.

Nosotros nos sumamos al malestar. Pensándolo fríamente, tenemos lo que nos podíamos esperar.

Tanta discreción con la disculpa  de la puja. Todo era muy opaco y con muy poca información. De los plazos de entrega mejor ni pensarlo.

A mi entender es fácil, máximo ahorro y  todo está muy justo para cumplir la legislación en cuanto a metros.

Dormitorio simple 6m,

Dormitorio doble 10m,

 Dormitorio principal 12m.

Después de muchas vueltas entiendo que el vestidor computa como dormitorio y no los  armarios (almacenaje). Artimaña para cumplir legislación.

Un saludo


Editado por salva6 16/04/2018 13:44


Editado por salva6 16/04/2018 13:46
 
F
FMA
16/04/2018 13:01

Buenas!

   Yo tambien quiero sumarme al malestar general en torno al tema de la redistribución/personalización. 

- La postura del equipo de arquitectos ya quedo patente en la reunion que tuvimos donde quedo clara que la flexibilidad era practicamente nula y que al final la redistribución no sirve para mucho mas que tirar algun muro y redistribuir sanitarios.Tambien se puede apreciar que cualquier cambio que implique un coste minimo es denegado (Ej:cambiar un vestidor por un armario).

- Las justificaciones no hay por donde cogerlas y en algun caso son incorrectas/falsas. 

- Con respecto a la personalización  habrá que limitarse a algun pack de mejoras que nos ofrezcan a precio asumible porque cualquier mejora ”personalizada” supondra pagar un precio desorbitado .Tengo curiosidad por ver cuanto tendremos que pagar por las puertas correderas. Parece que económicamente saldra mejor hacer cualquier “personalizacion” por nuestra cuenta cuando nos entreguen la vivienda.

- Sobre el tema de los comerciales pues ya se sabe que son como los politicos , “mienten” mas que hablan.Al final solo puedes reclamar sobre la memoria de calidades (que es demasiado generica o poco detallada en algunos aspectos) aunque creo que esto ya lo sabiamos todos.

En cualquier caso creo que es importante que las personas que defienden nuestros derechos como cooperativistas (presidente y demas) sean conscientes de estos asuntos y muestren su punto de vista por si se pueden cambiar algunos de estos aspectos del desarrollo de la obra. Me parece muy bien que Asertis tenga “su planning” pero creo que si la promocioón se desarrolla bajo un regimen de cooperativa es para que exista cierto consenso en algunos aspectos como pueda ser la redistribucion/personalización y no solo como una manera de evitar los posibles imprevistos/sobrecostes.

 


Editado por FMA 16/04/2018 13:03
 
M
mariposavuelalibre
13/04/2018 17:05

Buenar tardes,

Efectivamente CHAF no has podido describirlo mejor, nosotros estamos totalmente desencantados con la redistribución, te lo venden como una opción de ajustar la vivienda a tus necesidades y al final no te permiten practicamente nada, y lo peor es que muchas de las justificaciones que aportan no son concluyentes y se contradicen.

Tristemente creo que no concluyen las respuestas porque las medidas que nos han facilitado en los planos no van a ser las reales (es comprensible que puedan oscilar algo), pero es que he preguntado en varias ocasiones una medida y nunca me han dado respuesta, entiendo que no pueden garantizar una medida exacta puesto que puede haber un par de centimetros de variación, pero todo huele raro.

En nuestro caso sí nos han permitido quitar el vestidor y hacer un “vestidor abierto”? que no deja de ser el hueco para un armario empotrado. Hemos optado por esta opción a pesar de perder almacenaje porque el acceso al baño a través del vestidor no nos convencía. Además que con el vestidor la habitación se queda en 10 metros cuadrados útiles y de la otra forma se queda en 12 metros cuadrados y siempre podríamos añadir un aparador.

Me temo que con la personalización va a ocurrir más de los mismo, como ya he puesto en el grupo personalización, habrá un par de paquetes a los que te puedes acoger donde habrá unas opciones inamovibles y si quieres algo más personalidado pues o accedes a pagar el “peaje”? o te quedas con lo que hay.

La verdad que totalmente defraudados.

Buen fin de semana a todos!!!

 

 

 

 

 

 

 

 
C
CHAF
13/04/2018 13:52

Buenas tardes, nosotros también estamos un poco defraudados con la redistribución. Practicamente casi todo lo que propusimos nos lo han denegado… 

- Lo del vestidor y almacenaje en el dormitorio principal es un vergüenza que no permitan eliminarlo, sobre todo, porque el comercial que nos vendió el proyecto nos dijo que sin ningun problema...

- Prometen una redistribución en función de necesiades y después, todo es imposible...

- En los dormitorios dobles, habiamos solcitados poner en otro lugar los armarios empotrados, tal y como estan dispuestos en otras viviendas como la que tendriamos nosotros debajo, y tampoco lo ven viable..

- Por lo que veo aquí las justificaciones que dan son distintas para la misma modificación y no sé a vsootros pero a mi me parecen de muy poco fundamento.

- Y para seguir mejorando, una propuesta nuestra ni ha sido valorada, ni tenida en cuenta

Y lo peor de todo en nuestro caso, es que nos han reducido en el plano que nos plantean tras nuestra propuesta, el espacio del salón, sin advertirnos nada y sin ningun tivo de justificación. Esperemos que sea un error…

Me da la sensación de que se han metido en un charco en esto de la redistribución que no saben cómo salir. Pero para nosotros fue uno de los motivos de peso para decantarnos por esta promoción. Y desde luego, está dejando mucho que desear.

 
V
VRP
09/04/2018 13:12

Buenos días, JuanPl,

En nuestro caso nos han dejado quitar el vestidor para hacer un vestidor abierto. La verdad es que no nos convence demasiado porque perdemos almacenaje. Así que finalmente nos quedaremos con el vestidor.

 
V
Vecino_01
02/04/2018 16:39
En nuestro caso no nos han permitido el cambio. Así que hemos dejado el vestidor donde estaba al principio
 
JuanPL
JuanPL
02/04/2018 13:04

Hola a todos,

en las últimas respuestas que estáis recibiendo de los arquitectos sobre la redistribución, ¿se está admitiendo la instalación de armarios emportrados en los dormitorios principales en lugar de vestidores?

Gracias.

 
V
Vecino_01
15/03/2018 20:06

Hola,

El motivo de no poderse eliminar el vestidor, es que hacerlo implica ir en contra de la memoria de calidades, donde se indica las características del vestidor para aquellas viviendas que lo incorporan. Una de las condiciones de la guía de redistribución es que no se pueden modificar lo que se indica en la memoria de calidades.

Al final la solución será hacer un vestidor que parezca un armario empotrado, es decir un vestidor estrecho y largo y con una entrada grande sin puerta.

 
JuanPL
JuanPL
15/03/2018 11:43

Este es el mensaje que he enviado al consejo rector. a ver si hay posibilidades de eliminar el vestidor.


Estimados compañeros del consejo Rector de San Sebastián Class:

en el foro de los nuevos vecinos, hemos comprobado que a varios vecinos se nos ha rechazado en la propuesta de redistribución, la eliminación del vestidor del dormitorio principal y su sustitución por un armario empotrado. entendemos que para una mejor adaptación de nuestras viviendas a nuestras necesidades, tendría que ser posible esta posibilidad, más teniendo en cuenta que el acceso al baño principal a través de un vestidor dificulta el acceso al baño para las personas de movilidad reducida.
También entendemos que esto no es una cuestión de sobrecostes, porque la eliminación del vestidor, también se ha vetado.
Solicito vuestra intervención en este asunto con la máxima urgencia, ya que la fase de redistribución termina en 2 semanas.

Saludos.
 

 
JuanPL
JuanPL
15/03/2018 11:32

Hola a todos,

no entiendo por qué no se puede eliminar el vestidor, si no aparece nada en contra en la guía de redistribución.

Si os parece voy a escribir en nombre del foro al consejo rector de la cooperativa para plantear el problema y flexibilizar la redistribución.

Saludos.

 
M
mariposavuelalibre
14/03/2018 22:14

Hola vecino_01, te han dado alguna justificación de por qué no se puede eliminar? he vuelto a leer la guía de redistribución y no dice nada de que no se pueda elminar, estoy un poco indignada. Además no se supone que la redistribucion es para ajustar la vivienda a nuestras necesidades. En fin que nos venden el proyecto de redistribución como una gran oportunidad...te dan al menos la opción de que se pueda eliminar en personalización o ni eso?Gracias

 

 
V
Vecino_01
14/03/2018 19:59

Hola,

 

Ya nos han confirmado que no se puede eliminar el vestidor, sólo modificar sus dimensiones cumpliendo unos mínimos que no indican.

Nosotros aún no hemos recibido las facturas.

 

Saludos

 
M
mariposavuelalibre
14/03/2018 16:30

Buenas tardes, a nosotros también nos han dicho lo mismo, que no podemos quitar el vestidor y poner armario. Pero hemos consultado la posibilidad de eliminarlo y el armario ya lo pondremos después. A ver que nos responden.

Aprovecho la ocasión para preguntaros si alguno de vosotros habéis recibido las facturas de los pagos realizados. Gracias

 

 

 
V
VRP
14/03/2018 12:15

Buenos días, 

A nosotros también nos han dicho que no podemos cambiar el vestidor por el armario. Así que les hemos propuesto quitar el vestidor y ya veremos que hacemos después. Es que nos parece que es un vestidor bastante pequeño y que no se le puede dar mucha utilidad…. 

A ver si nos dejan quitarlo! 

 
JuanPL
JuanPL
13/03/2018 17:38

Vecino_01 dijo:
Hola,

Por otro lado quería preguntarte lo que comentas de las modificaciones "a la carta". El peaje de los 3.500€ ¿es para cualquier personalización mínima o para modificaciones de cierta envergadura? ¿cómo has conseguido esta información?

Un saludo

Hola Vecino_01,

el foro de la promoción Aravaca Class (trambién de Cooperativa Singular) lo mencionan. Lo que no tengo claro es si el peaje de personalización sea para cualquier cambio o solo para cambios fuera de los establecido en ciertos paquetes predefinidos.

https://www.nuevosvecinos.com/aravacaclass/4007886-personalizacion

En cualquier caso, han pasado 4 años y en la fase que estamos es cuestión de poder cambiar las cosas vía aprobación en asamble de socios.

Respecto el vestidor, si el tema se resiste, una posible solución sería simplemente eliminarlo y a posteriori ubicar un armario emportrado prefabricado.

Saludos.

 

 
V
Vecino_01
13/03/2018 16:19
Hola,

A nosotros también nos han denegado la sustitución del vestidor por armario empotrado. Pero tengo ciertas dudas de que nos vayan a dejar eliminar el vestidor dado que he solicitado un armario empotrado en otra estancia donde no había y no me han puesto problema. Es posible que no se pueda eliminar el vestidor, lo cual es una mala noticia. Bajo mi punto de vista, ese vestidor es poco funcional, yo no veo como se puede optimizar el espacio en esa propuesta de vestidor.

Les he enviado la consulta y estoy a la espera de respuesta. Creo que sería buena idea que todo aquel que desee eliminar el vestidor lo pida explícitamente, puesto que al ser muchos, la gestora lo podrá tener en cuenta.

Por otro lado quería preguntarte lo que comentas de las modificaciones "a la carta". El peaje de los 3.500€ ¿es para cualquier personalización mínima o para modificaciones de cierta envergadura? ¿cómo has conseguido esta información?

Un saludo
 
JuanPL
JuanPL
08/03/2018 12:59

Estimados vecinos,

acaban de contestarme de redistribución y básicamente han aceptado todas nuestras propuestas, exepto “eliinar el vestidor del dormitorio principal y sustituirlo por un armario emportado, debido a que va en contra de la memoria de calidades (apartado carpintería interior)”.

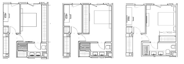
El vestidor, tal y como está concebido, dificulta la creación de un espacio más o menos rectangular, adecuado para una estancia y un armario emportado encaja mucho mejor. En nuestro caso, vamos a eliminar el vestidor de cualquier modo y tendremos dos opciones:

- Dejar el espacio vacío sin vestidor y donde teníamos pensado colocar el armario emportrado y una vez finalizada la obra instalar un armario modular hasta el techo, como si fuera un armario emportrado.

- Dejar unos pequeños tabiques cerrando el espacio que formará el futuro armario empotrado y una vez finalizada la obra, hacer un armario empotrado.

Seguramente, la instalación del armario empotrado se podrá hacer en la fase de personalización, pero por lo que tengo entendido en otras promociones, el acceso a modificaciones “a la carta” tiene un peaje de acceso de 3.500€ + el coste de las modificaciones, por lo que sería preferible desde el punto de vista económico realizar la instalación del armario empotrado una vez entregadas las llaves.

A ver que os van contestando a vuestras propuestas de armarios en los dormitorios principales.

Si es un tema que afecta a todos los que hemos pedido eliminar el vestidor, se puede plantear como mejora para la próxima asamblea de la cooperativa, para que nos dejen añadir los armarios empotrados en la fase de redistribución.

Saludos.

 
I
isabeliri
21/02/2018 10:42
Hola VRP, perdona porque llevo tiempo sin leer el foro. Por un lado yo hablaba de que ahora también me han dicho que si lo sé ya, diga que puertas correderas quiero en las habitaciones, aunque eso pertenezca a la personalizacion. Porque así ahora ya dejan esos tabiques preparados para puertas correderas, en mi caso creo que las cambiaré en ambos baños.
Por otro lado las puertas de los armarios creo que son correderas, pero de esto no estoy segura 100%, y se podrán cambiar a abatibles en la personalización.
Un saludo
 
P
Pplu_s
19/02/2018 22:03
Buenas noches VRP
La tele podría ir en el propio armario (detrás de un espejo o sin el), con un soporte abatible en el techo motorizado o proyectado en el armario mediante un proyector
 
M
mariposavuelalibre
19/02/2018 15:05

Hola,

VRP aún no me han contestado respecto a los enchufes de la cocina, entiendo que no me lo aceptarán, pero es algo que después en personalización podré añadir.

Creo que todos estamos más o menos con las mismas opciones de redistribución, la opción 2 de armario también la estamos valorando, en ese caso VRP pondríamos la tele en el armario.

 

 
V
VRP
19/02/2018 08:49

Buenos días, Pplu_s

Nosotros también hemos quitado el vestidor y hemos optado por tu opción nº 2 de armario. También nos gustaba mucho la opción de poner el armario en la pared más amplia pero nos daba cosa no tener la cama mirando hacia la puerta… ¿Y cómo vas a poner la tele en el armario? 

 
P
Pplu_s
19/02/2018 08:35

Hola  a todos,

La verdad es que la redistribución es un dolor de cabeza para nosotros pq no nos apaña nada 100%. Para la cocina hemos visitado muchas tiendas pero al final el unico que no nos cobraba por el diseño es Rio (aunque la oferta de la cocina Rio la hacen desde la Cooperativa) os adjunto el plano por si os sirve, con respecto al resto de la casa, tambien hemos optado por quitar el vestidor y poner un armario (aunq no nos hemos decidido todavia donde)  y ampliar la cocina 20 cm.

 

 

 
V
VRP
16/02/2018 19:27
Hola mariposavuelalibre, todavía no lo hemos enviado, esperamos hacerlo en los próximos días. En cuanto sepa algo ya te contaré.

Mariposavuelalibre, veo que has puesto 4 enchufes en la encimera, te han dado el OK para poner 4? En la guía ponía que se podían 3.... Y bien es cierto que cuantos más mejor.

Buen finde!
 
M
mariposavuelalibre
16/02/2018 15:15

Hola, nosotros la cocina ya tenemos también la distribución, cambiamos apertura de la puerta como bien indica JuanPL habiendo una mocheta detrás será más práctico. Continuando por ese lado ponemos un mueble botellero de 30, frigo, torre horno-micro y el resto espacio para la mesa, en el espacio del botellero si al final decidimos frigo de 90 pues ya tenemos el hueco calculado, y queda un espacio normalito para la mesa extensible a lo ancho. Por el otro lado lavavajillas, fregadero, dos muebles de 60, un mueble aceitero, vitro con mueble de 90 y mueble de 60 pero que en realidad es menos por la terminación del final. Sin muebles altos a ese lado, hemos optado por no aumentar la conica finalmente dado que se sacrifican las habitaciones y era algo??que no nos terminaba de convencer.

Quería preguntar VRP si ya has enviado tu proyecto de armario de 3 metros en la habitación, pues me encanta la idea pero siguen sin darme las medidas que tu comentas, pues si la habitación mide 3 metros escasos, y le quitas largo de cama 1,90+cabecero+un par de cm que sobresale la ropa de cama te pones en 2 metros, queda un metro para armario y pasillo.

Nosotros también vamos a poner puertas correderas en algunos sitios. Y redistribuir el baño principal, si la idea del armario es viable también lo haremos y eliminaremos el vestidor, de lo contrario lo mantendremos.

Que pena que en Co&Co espacios hayan pedido ese dinero por ejecutar el proyecyo, de todas formas la información que me pasaron es de cara a amueblar la cocina, nosotros hicimos el proyecto con ellos pero no nos han cobrado por ser clientes. Pero básicamente la distribución la hemos solicitado así nosotros.

Saludos!


Editado por mariposavuelalibre 16/02/2018 17:39


Editado por mariposavuelalibre 16/02/2018 17:41
 
V
VRP
16/02/2018 14:16

Buenas tardes, Isabeliri, 

Entiendo que hablas de las puertas de los armarios, no? Yo me pensaba que eran correderas…

 
I
isabeliri
16/02/2018 14:12

Hola, yo te puedo contar mi caso concreto por si te sirve, yo quiero poner varias puertas correderas en vez de abatibles, pregunté si era posible porque aunque esas puertas formen parte de la personalización, yo entiendo que afectan al proyecto de la casa, ya que hay que plantearlas desde le principio. Me han contestado que efectivamente, si uqiero poner puertas correderas lo dga ahora y ellos lo plantearan para que, si es posible instalarlas, lo dejaran preparado para la fase de personalización.

Por otro lado, tengo entendido que en la fase de personalización se pueden cambiar las puertas de los armarios a correderas, las que vienen no son correderas creo. Lo que no sé es el coste.

Un saludo

 
JuanPL
JuanPL
16/02/2018 09:05

Hola a todos,

sobre la distribución de la cocina, como hace pocos meses que renové mi cocina actual, eso me ha servido de base para hacer yo mismo la distribución, ya que la cocina es muy similar.

En mi caso, los cambios propuestos son:

- Puerta de la cocina abre en la otra dirección, obvio, ya que hay una mocheta y así al estar abierta la puerta estorba menos en los muebles.

- Desde la entrada de la cocina, lado izquierdo y comenzando por la puerta: mueble de 60, fregadero de 60, lavavajillas de 60, placa 60, mueble 90, torre micro+horno de 60 y para tapar la mocheta anexa al tendedero un pequeño mueble alto de 30 y así se da continuidad a toda la cocina y se tapa esa mocheta, total los 420 cm que tiene de largo la cocina.

- Desde la entrada de la cocina, lado derecho, mueble alto (desde el suelo al techo) de 40, frigorifico americano de 92 cm, mesa y 4 sillas.

Esta distribución permite añadir un frigorifico americano y poner una pequeña mesa de 110x50 y cuatro sillas.

La verdad es que es una decisión importante y hay que mediarla bien según nuestros gustos y necesidades.

Saludos.

 

 
JuanPL
JuanPL
13/02/2018 09:54

Hola VRP,

leyendo detenidamente la documentación que nos han enviado, entiendo que no podemos estar preguntando por email, hay que enviar una o varias propuestas de redistribución, incluidas nuestras dudas, ellos contestan y hay que validar alguno de los diseños que nos propongan.

Lo que nosotros hemos hecho es, basándonos en los planos que tenemos, hacer una propuesta con todos nuestros deseos y al mismo tiempo hemos planteado nuestras dudas (por ejemplo, si las puertas de los armarios empotrados son correderas). Es esperemos que nos contesten con qué se puede y qué no desde el punto de vista técnico.

En resumen, hay que afirmar mucho y meditar con cariño la propuesta que hagamos porque no habrá vuelta atrás. No es una situación ideal pero entiendo que es para eviar retrasos en el proyecto.

Saludos.

 

Fin del hilo
Mensajes Relacionados
© 2002-2026 - HABITATSOFT S.L.U. CIF B-61562088 C/ Roger de Lluria, 50 - P.1 08009 Barcelona
Contacto |  Publicidad |  Aviso Legal y Política de Privacidad  |  Política de cookies  |  Blog |  Catastro |  Facebook |  Twitter