Volver al foro
ELPRIMERODELAESQUINA
ELPRIMERODELAESQUINA
30/01/2015 22:03

Rediseñando nuestra vivienda

¿Cómo rediseñar mi casa para adaptarla a mis necesidades y gustos?

35.300 lecturas | 122 respuestas

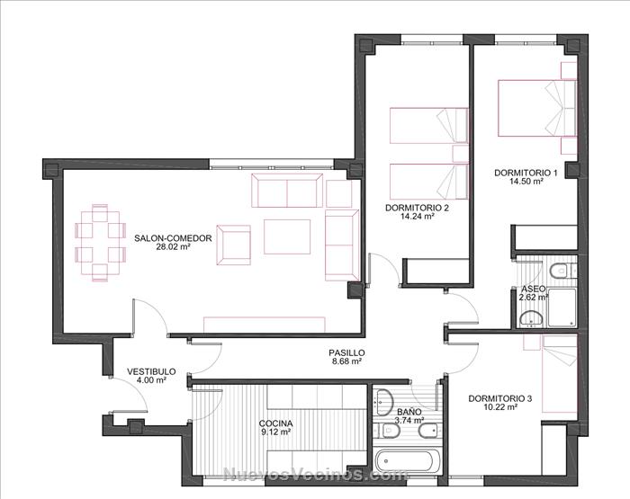
Hola. Llevo un tiempo dándole vueltas al Rediseño de mi casa para adaptarla a nuestras necesidades o gustos. Seguro que todos tenemos en mente aquello que deseamos hacer. Por si le sirve a alguien de ayuda iré subiendo sugerencias o consideraciones a tener en cuenta a la hora de replantear la vivienda para que, en la medida de lo posible, nuestro proyecto sea correcto antes de mostrarlo a los arquitectos.

https://www.dropbox.com/s/r8r8rv5wqdwja4v/plano%20base%20%28a%29.pdf?dl=0

 
C
cidretiro
29/01/2022 13:52
Hola vecinos.
¿Sabéis cuándo estarán las calles y la zona verde de parque terminadas?
 
G
goyitodelretiro
20/02/2019 08:57


Buenos días.
Este es uno de los motivos del retraso en la construcción de nuestras viviendas.
https://okdiario.com/espana/2019/02/20/manuel-leira-hijo-carmena-fue-impulsor-real-del-proyecto-ganador-primera-fase-del-concurso-3728537

Saludos.

 
CastordelRetiro
CastordelRetiro
11/07/2018 14:54

Hola a tod@s.

En este punto, más de cuatro años después de que comenzara todo esto, aún no sabemos cuando van a empezar a construirse nuestras viviendas. No puedo olvidar cuando en el mes de abril llamé a Domo y la gestora que me atendió me dijo que empezariamos para Mayo. Supuse que serían las obras de urbanización. Mayo¡¡¡¡¡ Qué bien, pensé. Por fin. Le pregunté si sería para primero o últimos, pero no podía contestar a ese dato tan preciso. Pero sería Mayo. Pero no fue así. Y ahora que Mayo  se quedó tan atrás, pienso..¿por qué me dijo algo sin fundamento? Verdaderamente no había nada que fundamentara que fueramos a empezar en Mayo. Como tampoco había fundamento en tantas y tantas otras veces que pusieron fecha al comienzo de las obras.

AISLAMIENTO FACHADA

Como ya sabéis, no todas las viviendas tendrán el mismo nivel de aislamiento. La fachada no es igual para todos. Algunas zonas de las fachadas añadiran una placa cerámica por delante del muro general que funcionará de coraza o escudo frente al frío, el calor o los ruídos. Esta segunda piel, detiene y aminora la intensidad del frío, del calor o de los ruidos que llegan a la fachada general que ya es igual para todos. Pero aquellas viviendas que disfrutan de esta capa adicional formada por la placa cerámica y una gruesa cámara de aire, permite que para cuando las inclemencias llegan al muro general, éstas llegan disminuídas, aminoradas, y por tanto, el aislamiento general que tendremos todos por igual, será MÁS CAPAZ de detener esos valores reducidos que el resto de vecinos. En definitiva, algunos vecinos gozarán de un aislamiento térmico y acústico mejor que el de otros. Y esto es grave, cuando la fachada la pagamos entre todos. 

Pero no acaba aquí el problema. El problema no tiene final. Pues las viviendas dotadas de esa fachada superior, conseguirán que los vecinos que la disfruten tengan un ahorro energético y por tanto económico, de por vida.

Yo me inclino a pensar, que pese a que existen tales diferencias aislantes, los arquitectos han buscado en el añadido de la placa a una zonas de la fachada, una razón estética. Y ésto, aunque no elimina las diferencias, me tranquiliza.

 

 
G
gallodelretiro
04/07/2018 23:37

Se acordó aprobar el presupuesto de Ferrovial con el condicionante de que si llega alguna otra oferta más baja en las próximas dos semanas y Ferrovial no la iguala, se convoque una nueva Asamblea para someter el asunto a decisión de los socios.

 
M
maripazron
29/06/2018 21:43

Alguien sabe que ha ocurrido en la asambla de este miercoles día 27, pues me ha sido imposible acudir.

 
R
Retiro76
03/07/2016 16:30

Buenas tardes

Me gustaría saber la fecha prevista para el inicio de lass obras, ya que no pude asistir a la reunión del 28 de junio de 2016. Gracias

 

 

 

 
VecinoRetiro
VecinoRetiro
21/09/2015 14:45

Hola, nos hemos trasladado hace tiempo a un foro privado. Te animo a que solicites el acceso mediante el mail foro.privado.anden@gmail.com.

Saludos.

 
F
fleblic
21/09/2015 13:42

Hola,

soy de R1 con vivienda tipo V9, de los que tienen una habitación retranqueada como os adjunto.

El armario empotrado que originalmente constaba en el plano, nos lo han quitado por una salida de humos.

¿Alguien tiene alguna solución para aprovechar el espacio en esta habitación?

Gracias.

 
G
gallodelretiro
31/08/2015 21:55

  Buenos noches:

No tengo mucha idea de como mejorar mi piso y necesitaría ayuda. Por un lado creo que estaría bien puertas correderas en el baño de bañera y en el dormitorio 3, y quitaría el bidet del baño. No sé si podría ponerse donde el bidet el water y así que quedara más sitio para el lavabo.

Pero sobre todo lo que veo un poco raro y me gustaría que me ayudárais es la parte de los pasillos. hay mucho pasillo de entrada al salón, y hay 4 puertas en muy poco espacio en el pasillo pequeño.

Muchas gracias de antemano por vuestra ayuda e ideas.

 

 
VecinoRetiro
VecinoRetiro
05/03/2015 13:14

¡¡Este hilo que antes estaba hiperactivo ahora está parado!!


Por cierto no te di las gracias Diegotejon por el rediseño que te curraste de mi vivienda. Muy agradecido por tu esfuerzo.
 

 
A
anamanz
22/02/2015 16:39

Hola a todos!!!

Estamos emocionados con este chat!! muchas gracias por oferceros a ayudarnos en el rediseño de nuestra vivienda, y por todas vuestras ideas!!! Nosotros entendemos muy poco de esto por lo que agradeceríamos mucho ideas de posibles modificaciones para mejorarla.

Nuestra vivienda es Tipo V8  del edificio T1

En principio habíamos pensado incluir plato de ducha en el baño principal, y puerta corredera (las puertas correderas en los dos baños para que coma menos espacio porque son pequeñitos).

No sabíamos si incluir el primer tramo de pasillo dentro de la cocina, abriendo una puerta en el salón que comunicase con el resto del pasillo. Nos quedaría una cocina enorme pero a lo mejor asi podemos incluir un espacio de tendedero, o poner una mesa en la cocina y además perdemos menos espacio de pasillo....

Adicionalmente estábamos pensando como incluir algún tipo de vestidor o mas espacio de armarios en el dormitorio principal. Tengo la impresión de que al final en todos los dormitorios se pierde un poco de espacio con el pasillo que hay en la entrada a los mismos, pero no se muy bien como modificar la estructura para mejorar eso la verdad...

Muchas gracias, de nuevo por vuestras orientaciones!! y cualquier opinión/idea adicional se agradece mucho!!!

Este es el plano de nuestra casita :)

https://www.dropbox.com/s/cub11ybs7dh4f4u/Plano%20piso.jpg?dl=0

 

 

 
legroal
legroal
18/02/2015 22:36
Muchas gracias vikyviko y dra.retiro!!! Así me cuadra más! ! :)
 
V
vikyviko
18/02/2015 20:58

Para legroal

Usando la escala gráfica me sale más o menos la misma escala que dice DRARETIRO de 1cm en el plano son 1,14 m en la realidad. Espero que así puedas sacar el largo de alguna pared y hacer el plano en el programa.

 
D
DRARETIRO
18/02/2015 18:44
Lo puse mal, es 1cm=1,143 metros
 
D
DRARETIRO
18/02/2015 14:53

A mí me pasa lo mismo con la escala. Imprimiendo el plano en DIN A4 (tamaño folio) a mí me sale la escala 1cm=1,173 metros

 
legroal
legroal
18/02/2015 11:15
Muchas gracias vickyviko! Muy amable!!! Así lo he hecho y muy bien! La escala 1/75 significa que 1 centímetro de plano son 75 en realidad, no? No nos cuadran las medidas con los metros cuadrados. ..eso ya lo hablaremos con los arquitectos cuando nos toque.
 
V
vikyviko
17/02/2015 16:01

Para legroal.

En floorplanner si te fijas al crear un nuevo proyecto hay como cuatro botones en la zona de la derecha, el botón que más a la derecha se encuentra te permite incorporar una imagen.

Haz un con recortes una imagen del plano de tu casa guardarlo y mediante esa opción lo insertas. Una vez añadido te va ha solicitar que le digas alguna distancia conocida de la casa. (nosotros imprimimos el plano en pdf y con una regla, usando la escala gráfica, sacamos el tamaño de una pared). A partir de hay ya solo es dibujar.

Espero haberte ayudado.

 
legroal
legroal
17/02/2015 12:07
Qué programas utilizáis para hacer los planos? ? Yo el floorplaner no lo entiendo, no me deja coger mi plano en pdf o word y modificarlo y el adove illustration me dice que es incompatible con Windows! Cual usáis vosotros?
 
V
vikyviko
16/02/2015 23:19

Hola vecinos, esta es la idea que habíamos pensado originalmente para la vivienda V13 del R2.

 


 

El espacio inútil del pasillo hemos decidido transformarlo en cuarto para trastos (para guardar la aspiradora y esas cosas que nunca sabes donde guardar).

En el baño principal queremos incorporar un mueble al lavabo que sea del ancho de la columna y vaya desde la pared hasta la ducha.

El baño pequeño no nos convence la distribución pero no se nos ocurre como mejorarla.

Por último tener una columna en la cocina condiciona mucho la distribución de la misma, la idea es poder meter el frigorífico y una columna con el microondas y el horno en ese hueco, y el espacio restante tanto superior como inferior emplearlo como zona de almacenamiento, y emplear el otro lado entero como zona de almacenamiento junto con el lavavajillas ya que al ser tan estrecha la cocina no es posible meter muebles enfrente, como mucho creemos que podremos poner una mesa de 50 cm de ancho.

 

 
diegotejon
diegotejon
16/02/2015 13:09

DRARETIRO dijo:

Buenas,

Yo sigo dando vueltas a la cocina de mi piso. Estaba pensando crear un pasa platos que ocupara toda la pared de la cocina. Como este pero cerrándolo con correderas de cristal:

http://1.bp.blogspot.com/-AZV-AS25Vl4/UYKryCZQrkI/AAAAAAAAF-Q/BnpEqpUzwio/s600/ARTID0000000074-IMG013.jpg

El problema es que entonces me gustaría poner la campana y la cocina en la pared de enfrente. Por el plano intuyo que va en la pared donde quiero poner el pasa platos. Lo que no sé es si eso será posible, por aquello de mover el tubo de la ventilación de la campana. ¿Sabéis algo sobre esto? ¿Se puede mover sin perder ventilación o tiene que estar cerca de las bajantes?

Gracias de antemano a todos. 

 

Hola DRARETIRO, creo que las cocinas vienen sin amueblar (corregidme si me equivoco), por lo que el diseño de los muebles de la cocina que aparece en tu plano, debe ser orientativo. 

En cualquier caso, hoy en día tienes campanas extractoras con doble motor para salvar grandes distancias y otra opción seria instalar campanas sin extracción de carbono, que te permitirían despreocuparte de por donde sube tu  tubo de extracción (aunque como estas campanas devuelven el aire filtrado a la cocina, podrían generar corrientes molestas).

 
diegotejon
diegotejon
16/02/2015 12:55

legroal dijo:

Hablando de bajantes,  yo tenía una duda, a ver si me la podéis resolver; es normal que todos los pisos de encima de mi coincidan en sus bajantes y estas vayan a dar a mi pasillo y mis baños esten en otra zona distinta??  Yo pensaba que coincidian en altura... 

 

Hola legroal, creo que lo que has identificado como bajantes son pilares... tiene toda la pinta que por ahí pasa una junta de dilatación, pero los arquitectos te podrán informar mejor...

En cualquier caso, en tu plano (como en el mio) no han dibujado las bajantes

 
D
DRARETIRO
16/02/2015 10:44

Buenas,

Yo sigo dando vueltas a la cocina de mi piso. Estaba pensando crear un pasa platos que ocupara toda la pared de la cocina. Como este pero cerrándolo con correderas de cristal:

http://1.bp.blogspot.com/-AZV-AS25Vl4/UYKryCZQrkI/AAAAAAAAF-Q/BnpEqpUzwio/s600/ARTID0000000074-IMG013.jpg

El problema es que entonces me gustaría poner la campana y la cocina en la pared de enfrente. Por el plano intuyo que va en la pared donde quiero poner el pasa platos. Lo que no sé es si eso será posible, por aquello de mover el tubo de la ventilación de la campana. ¿Sabéis algo sobre esto? ¿Se puede mover sin perder ventilación o tiene que estar cerca de las bajantes?

Gracias de antemano a todos. 

 
A
Amalfi652
15/02/2015 23:23

Hola Vecinanta, aprovecho para presentarme como tu vecina, que no de portal , pero si de terraza, tenemos la misma vivienda, y yo también le estoy dando vueltas para optimizar al máximo,  siguiendo las buenas ideas de nuestros vecinos EL PRIMERO DE LA ESQUINA Y DIEGOTEJON y al parecer lo estoy consiguiendo, en tu caso , me permito aconsejarte, (luego tu decides), porque creo que la idea de quitar el baño, no  amplia mucho el comedor  por la forma inicial que tiene e indudablemente estará mejor con el. Si no lo tienes no lo echas de menos, pero una vez que tienes dos baños, vas a ver lo útiles que son. Suprimir una habitación, eso dependerá de las necesidades que tengas, si te vale con dos, te quedarán muy amplias.

 
legroal
legroal
15/02/2015 23:13

Hablando de bajantes,  yo tenía una duda, a ver si me la podéis resolver; es normal que todos los pisos de encima de mi coincidan en sus bajantes y estas vayan a dar a mi pasillo y mis baños esten en otra zona distinta??  Yo pensaba que coincidian en altura... 

 

 

 
V
vecinanta
15/02/2015 22:36

Hola,

    Muchas muchas gracias por las propuestas a Diegotejon y primeroDeLaEsquina. Todavía estoy dudosa en eliminar uno de los dos baños... la verdad es que en mi casa actual sólo tengo uno y nos apañamos bien. Como la casa no es tan grande mi idea es optimizar los espacios que voy a usar. Bien es cierto que si quisiera venderlo el segundo baño incrementaría el valor de la casa... Todavía tengo que darle una vuelta a vuestras propuestas.

    

   

    

     

 
diegotejon
diegotejon
15/02/2015 20:19

Efectivamente PRIMERO tiene razón el mangueton del inodoro debe ir directamente al desagüe... Es el bote sinfónico el que podría conectarse a dicho mangueton en caso de no poder hacerlo directamente al desagüe. 

Y también es cierto que la distancia debe ser menor de un metro.

Lo que ahora me sorprende es que haya soluciones que no cumplan, como la V17 de R1 por poner un ejemplo. 

Y sin ir más lejos, mi propia vivienda... ya que si bien el aseo podría desaguar a la bajante del piso colindante, mi cocina y el baño grande no tienen ninguna bajante cercana... ni espacio para ella surprise

 
Editado por diegotejon 15/02/2015 21:05
 
V
vikyviko
15/02/2015 20:07

Buenas noches vecinos!!

Muchas gracias por la idea del super empotrado en el tercer dormitorio. Nosotros seguimos haciendo el plano, estamos empleando el programa que propusisteis de floorplanner. Nuestra idea original para esa zona era hacer un cuarto para trastos, pero la idea del empotrado nos ha encantado.

 
ELPRIMERODELAESQUINA
ELPRIMERODELAESQUINA
15/02/2015 19:27
Hola de nuevo. He mirado el plano de planta de la vivienda de VECINDATA y efectivamente sus dos baños vierten al mismo lugar, aunque yo creo que en el caso del baño del dormitorio principal el bife está cambiado con el inodoro. En cualquier caso, el inodoro de tu primera propuesta estaba aproximadamente a unos 3 metros de la bajante, cuando el CTE dice que el inodoro estará como máximo a 1 metro de la bajante (y no del bote sinfónico, como has escrito tu), ya que el inodoro vierte directamente a la bajante y debe hacerlo con la mayor pendiente posible y en la menor distancia.
 
diegotejon
diegotejon
15/02/2015 13:30

diegotejon dijo:

He acercado los inodoros a las bajantes, por si finalmente la distancia fuese un limitante.

He comprobado el código técnico de edificación y la distancia del bote sifónico a la bajante debe ser de máximo 2 metros y la distancia del inodoro a dicho bote de máximo 1 metro. Por lo que entiendo que podría llegarse a soluciones de 3 metros entre inodoro y bajante, por supuesto siempre y cuando se cumplan el resto de consideraciones de la norma en lo referente a pendientes. Sin conocer alturas de forjados, solados, suelos radiantes, falsos techos y demás, es difícil dar un veredicto... los arquitectos son los únicos que podrán confirmarlo.

 

 

 
diegotejon
diegotejon
15/02/2015 11:39

Adjunto otra propuesta dándole más protagonismo al salón.

El armario de la entrada se podría eliminar si no lo consideras necesario.

He acercado los inodoros a las bajantes, por si finalmente la distancia fuese un limitante.

Original:

Modificado:

 
diegotejon
diegotejon
15/02/2015 11:16

[/quote>

Veré si hay opciones de mover la puerta principal...

[/quote>

Creo que no va a ser posible, ya que el ascensor te lo impide... lo tienes justo pared con pared al baño de mi propuesta.

 

 
diegotejon
diegotejon
15/02/2015 10:52

diegotejon dijo:

Comprobare que el piso colindante no tiene bajantes junto a ese baño principal por si usa otras. 

 

Ya lo he comprobado y usan la misma bajante... La distancia no creo que sea un problema, si analizas los áticos V17 y V18 tienen los aseos a mucha mas distancia de las bajantes q mi propuesta. 

En cualquier caso, si lo que buscaba era un salón más amplio, la solución posiblemente no sea la más acertada, aunque siendo realistas, con esas bajantes, la situación de la puerta de acceso y el pilar en medio, será complicado conseguir algo mucho más diáfano...

Veré si hay opciones de mover la puerta principal...

 
diegotejon
diegotejon
15/02/2015 10:38

Hola PRIMERO, a eso me refería cuando decía lo de comentarlo con los arquitectos, aunque si el baño original de la habitación principal usa las bajantes que pasan por el medio de la planta, no debería haber ningún problema con mi rediseño... puesto que la distancia del baño de mi propuesta a las bajantes es similar a la distancia de ese baño principal a las mismas. 

Comprobare que el piso colindante no tiene bajantes junto a ese baño principal por si usa otras. 

un saludo

 

 
ELPRIMERODELAESQUINA
ELPRIMERODELAESQUINA
15/02/2015 09:16
Buenas. Me temo que el desplazamiento que haces del baño no será posible. Te invito a que vayas al comienzo de este hilo y en mis primeras intervenciones hay una titulada "Consideraciones a la hora de rediseñar el baño" o algo así. Echale un vistazo y entenderàs lo que te digo (pág. 1).

A vecindata la diría que no es necesario indagar mucho en su plano para darse cuenta de x qué llega a esa cruel decisión de cargarse un baño y cúal ha de ser el elegido. Y todo en respuesta a ese gran salòn que pretende conseguir. Me temo que habrá que continuar en el empeño x que la generosa propuesta de DT no consigue el objetivo, o al menos no en la cuantía suficiente como para justificar el exterminio bañero. Por otro lado, el nuevo emplazamiento del baño que nos queda es inviable x su localización tan extremadamente alejada de las bajantes.

 
diegotejon
diegotejon
14/02/2015 23:04

Hola Vecinanta,

Adjunto la propuesta teniendo en cuenta tus preferencias, es un tanto arriesgada y posiblemente tengas que consensuarlo con los arquitectos, pero aunque no te valga todo, quizá algo aproveches.

Original:

Modificado:

 
L
laf2013
14/02/2015 20:45
Bueno pues aquí os dejo el nuestro ? he intentado poner la foto como vosotros pero no soy capaz...

Nuestra vivienda es la tipología v22 de la parcela r2 ,es un ático.

Nuestra idea era intentar ampliar un poco los baños pero no tenemos claro como,si queremos dejar uno de los dos con bañera, pero no termino de ver como hacerlo sin que afecte mucho al tamaño de otras habitaciones ....

En la cocina quitariamos 3 muebles para poder poner una mesa.

Hacer un armario empotrado todo el pasillo quitándole un poco de espacio al salón

Alguna otra sugerencia? Estamos abiertos a ideas?? a mi el tema de las puertas Correderas me parece muy interesante

 
V
vecinanta
14/02/2015 19:14

Perdón otra vez, quería decir tipología V16 de R1.

 
V
vecinanta
14/02/2015 19:12

Hola a todos,

    La ilusión que se respira en este foro es contagiosa... Respondiendo a PrimeroDeLaEsquina yo estoy pensando en modificar mi vivienda de 3 dormitorios en 2 para dar más espacio al salón. Además, quiero pasar de dos baños a sólo uno... aunque ya sé que esto perjudicaría a la hora de venderlo en un futuro potencial. Sin embargo, mi meta es conseguir una vivienda lo más amplia y diáfana posible. Abusando de vuestra amabilidad me gustaría que me sugirierais posibles mejoras a mi vivienda, se trata de la tipología V16 de R2.

 

       Adelanto mis gracias a todos vosotros, sois muy muy amables por darnos vuestras magníficas propuestas.

 

 

 
diegotejon
diegotejon
14/02/2015 16:57

Gracias Legroal, siempre se pone uno malo de fin de semana... Es la famosa ley de Murphy...

Le he estado echando un vistazo a tu vivienda y la verdad que tiene una distribución  difícil de mejorar y si a eso le sumas las mejoras de PRIMERO... Diría que imposible... En cualquier caso, le seguiré echando vistazos de vez en cuando por si llega una idea feliz...

 

 

Fin del hilo
123  mensajes1234>
Mensajes Relacionados
© 2002-2026 - HABITATSOFT S.L.U. CIF B-61562088 C/ Roger de Lluria, 50 - P.1 08009 Barcelona
Contacto |  Publicidad |  Aviso Legal y Política de Privacidad  |  Política de cookies  |  Blog |  Catastro |  Facebook |  Twitter