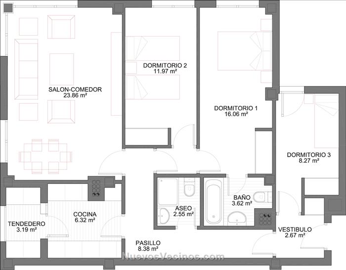
Para AMALFI
Te paso tres planos. El original, luego otro con los pequeños cambios que se me han ocurrido y un tercero finalmente donde vuelvo a darte otra idea sobre el dormitorio principal.



1) En el dormitorio, desplazamos la cama hasta dejar el espacio suficiente alrededor de ella y ampliamos el baño para hacerlo más amplio. Te doy una distribución del baño pero la idea importante es quitar espacio de más alrededor de la cama y dársela al baño que anda escaso.
2) El baño pequeño era muy pequeño. Para dejar un baño decente he pensado en sacrificar el empotrado de la entrada. Tu decides si merece la pena o no.
3) No se si es posible hacer que la puerta de la cocina que da a la terraza puede abrir hacia afuera, osea, hacia la terraza. Si fuera posible sería muy interesante. Abría que consultarle a los técnicos.
4) He desplazado la pared que hay frente a la puerta de entrada para ampliar el fondo del recibidor. No afecta mucho al salón y sin embargo el recibidor respira.
5) Quizá en tu caso, poner una puerta antes de entrar en la zona de dormitorios no estaría mal. y de paso ponemos coto al pasillo para que no se vea tan largo y menos aún que alguien al entrar pueda vernos en nuestra habitación del fono directamente.
6) La terraza es muy grande. Deberías compartirla. Me das una parte? Es broma.
7) Por último, y esto lo ves en el tercer plano, te paso otro planteamiento para tu dormitorio principal. Se trata de darle más superficie en armarios empotrado. Para ello he desplazado un poco, casi inapreciable, el tabique del salón, para, sin sacrificar mucho el baño y que éste siga quedando amplio, puedas meter un empotrado más, por que a mi modo de ver, andabas just@. Si no quieres quitarle tanto o nada al salón, puedes plantearte dejar el baño más justito.
Esto es todo. Espero haber sido de utilidad.
Para ANIKIKA
Hoy Anikika me levanté pronto para hacer el plano de AMELFI. Por hoy no seguiré con esto pues mi familia me demanda. Pero en cuanto tenga ocasión miro tus planos y te digo algo.
Editado por ELPRIMERODELAESQUINA 08/02/2015 9:48